Connect

Find us on...

Dashboard

Login using...

Shawn Bengtson

Office Broker - DRE 01236964

  • Office 760-805-7199
Questions?

21999 Riverside Avenue, Red Bluff – $355,000

  • 3 Beds
  • 2 Baths
  • 1,656 Sqft
  • .29 Acres
  • 3 Beds
  • 2 Baths
  • 1,656 Sqft
  • .29 Acres

21999 Riverside Avenue

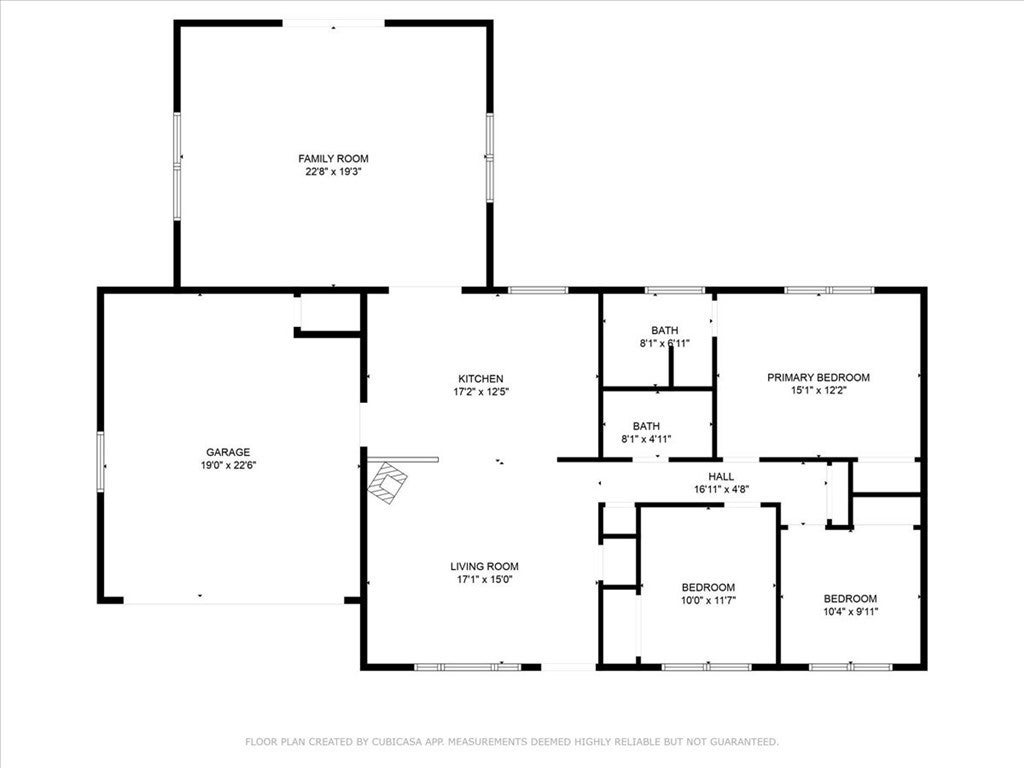
Charming and move-in ready, 3 bedrooms, 2 bathrooms, newer flooring, and fresh interior & exterior paint throughout. Updated kitchen, with movable island, is ideal for extra meal prep space and gathering around. Enjoy both a cozy living room and a spacious large family room with a pellet stove for added warmth. Covered front & back porch. The home also boasts a newer roof and is fully enclosed with perimeter fencing—ideal for privacy, pets, or play. Enjoy the mature apricot tree, and shed in back yard. A great blend of comfort and function!

Essential Information

  • MLS® #SN25152723
  • Price$355,000
  • Bedrooms3
  • Bathrooms2.00
  • Full Baths2
  • Square Footage1,656
  • Acres0.29
  • Year Built1976
  • TypeResidential
  • Sub-TypeSingle Family Residence
  • StyleRanch
  • StatusActive

Community Information

  • Address21999 Riverside Avenue
  • AreaPL01 - Tehama County
  • CityRed Bluff
  • CountyTehama
  • Zip Code96080

Amenities

  • Parking Spaces2
  • ParkingAsphalt, Driveway, Oversized
  • # of Garages2
  • GaragesAsphalt, Driveway, Oversized
  • ViewNeighborhood
  • PoolNone

Interior

  • HeatingCentral
  • CoolingEvaporative Cooling
  • FireplaceYes
  • # of Stories1
  • StoriesOne

Interior Features

Cathedral Ceiling(s), Dry Bar, Laminate Counters, Open Floorplan, Primary Suite

Appliances

Dishwasher, Gas Range, Microwave, Refrigerator

Fireplaces

Free Standing, Living Room, Pellet Stove

Exterior

  • ExteriorWood Siding
  • ConstructionWood Siding
  • FoundationSlab

Lot Description

Back Yard, Front Yard, Rectangular Lot

School Information

  • DistrictRed Bluff Joint Union

Additional Information

  • Date ListedJuly 8th, 2025
  • Days on Market183

Listing Details

  • AgentBarbara Dancel
  • OfficeHIVE Real Estate Group, Inc
Please provide a valid email address.

Price Change History for 21999 Riverside Avenue, Red Bluff, (MLS® #SN25152723)

Date Details Change
Status Changed from Active Under Contract to Active
Status Changed from Active to Active Under Contract
Price Reduced from $360,000 to $355,000 $5,000 (1.39%)

Barbara Dancel, HIVE Real Estate Group, Inc.

Based on information from California Regional Multiple Listing Service, Inc. as of January 30th, 2026 at 3:36am PST. This information is for your personal, non-commercial use and may not be used for any purpose other than to identify prospective properties you may be interested in purchasing. Display of MLS data is usually deemed reliable but is NOT guaranteed accurate by the MLS. Buyers are responsible for verifying the accuracy of all information and should investigate the data themselves or retain appropriate professionals. Information from sources other than the Listing Agent may have been included in the MLS data. Unless otherwise specified in writing, Broker/Agent has not and will not verify any information obtained from other sources. The Broker/Agent providing the information contained herein may or may not have been the Listing and/or Selling Agent.