Connect

Find us on...

Dashboard

Login using...

Shawn Bengtson

Office Broker - DRE 01236964

  • Office 760-805-7199
Questions?

435 Otterson Drive, Chico – $13,998

  • $14k Price
  • 5.86 Acres
  • 152 DOM
  • $14k Price
  • 5.86 Acres
  • 152 DOM

435 Otterson Drive

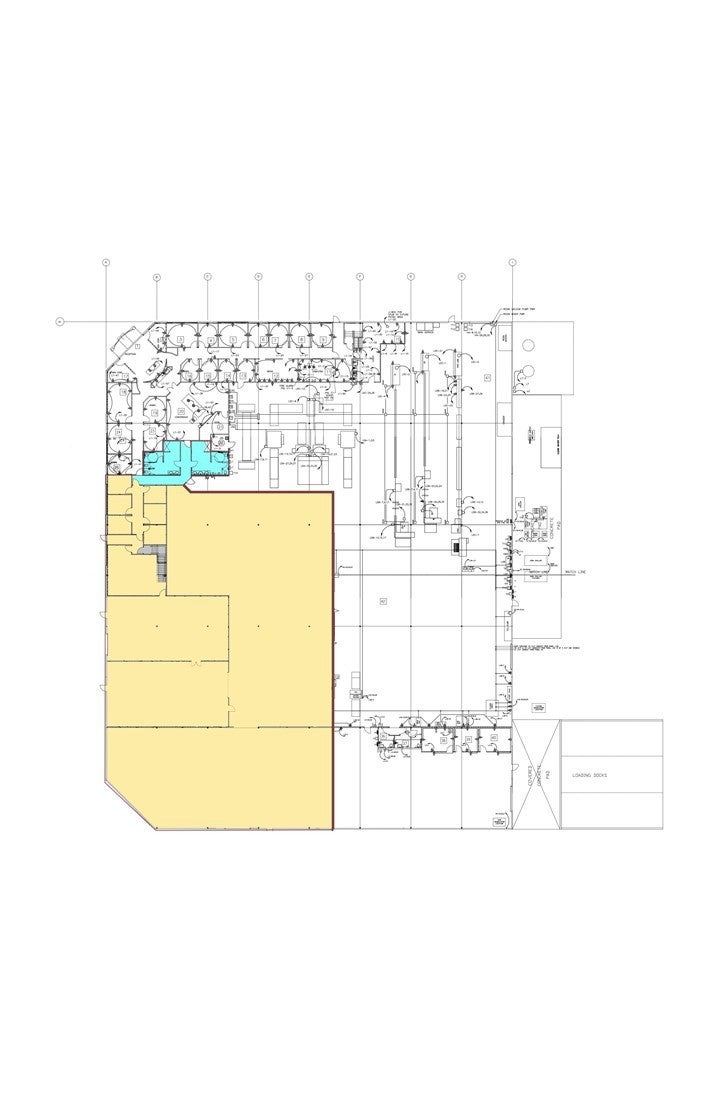
Exceptional opportunity to lease a versatile industrial manufacturing property located within the most desirable planned industrial park in Chico, CA. This expansive facility, built in 2000, is ideal for businesses seeking a strategic location coupled with modern infrastructure and ample space for growth. The property features approximately 16,432 SF of gross warehouse floor area split up into four areas including a main open area of ±7,950 SF, another open area of ±5,300 with grade-level roll-up door, and two conditioned ±1,960 SF areas, one with a grade-level roll-up door. There is a front office area consisting of ±2,233 SF including 6 private offices, an open workspace area and common bathrooms. This robust facility boasts a concrete tilt-up envelope with a joist to glue-lam roof system, interior steel support columns spaced at 25’ x 50’, and a 6” concrete slab. Zoned ML (Light Manufacturing), the property offers a wide range of permissible uses and is fully serviced with essential utilities, including City of Chico sewer and drain, Cal Water Company, Pacific Gas & Electric as well as fiberoptic cable data service. The entire facility is protected with a fire suppression sprinkler system, and provides ample parking with 25 stalls available, accommodating employees and visitors with ease. The warehouse has skylights to enhance the working environment by providing abundant natural light, reducing the reliance on artificial lighting. Yard space may be available. Located conveniently near major highways, 435 Otterson Drive is easily accessible for transportation and logistics. The property is just minutes away from Highways 99 and 32, providing direct access to Sacramento to the south and Redding to the north.

Essential Information

  • MLS® #SN25169397
  • Price$13,998
  • Bathrooms0.00
  • Acres5.86
  • Year Built2000
  • TypeCommercial Lease
  • Sub-TypeIndustrial
  • StatusActive

Community Information

  • Address435 Otterson Drive
  • CityChico
  • CountyButte
  • Zip Code95928

Interior

  • # of Stories1

Exterior

  • Lot DescriptionNear Public Transit

Additional Information

  • Date ListedJuly 1st, 2025
  • Days on Market152

Listing Details

  • AgentBrandon Harris
  • OfficeHarris Commercial Real Estate
Please provide a valid email address.

Brandon Harris, Harris Commercial Real Estate.

Based on information from California Regional Multiple Listing Service, Inc. as of December 27th, 2025 at 4:30am PST. This information is for your personal, non-commercial use and may not be used for any purpose other than to identify prospective properties you may be interested in purchasing. Display of MLS data is usually deemed reliable but is NOT guaranteed accurate by the MLS. Buyers are responsible for verifying the accuracy of all information and should investigate the data themselves or retain appropriate professionals. Information from sources other than the Listing Agent may have been included in the MLS data. Unless otherwise specified in writing, Broker/Agent has not and will not verify any information obtained from other sources. The Broker/Agent providing the information contained herein may or may not have been the Listing and/or Selling Agent.