Connect

Find us on...

Dashboard

Login using...

Shawn Bengtson

Office Broker - DRE 01236964

  • Office 760-805-7199
Questions?

1070 W Wood Street # B, Willows – $1,885

  • $1.9k Price
  • .71 Acres
  • 18 DOM
  • $1.9k Price
  • .71 Acres
  • 18 DOM

1070 W Wood Street # B

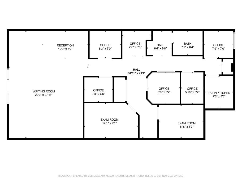
Well-maintained professional office suite available for lease. This inviting space offers excellent visibility along Willow's main thoroughfares with ample on-site parking. The suite features large front windows that bring in abundant natural light, a welcoming reception and waiting area, multiple private offices/exam rooms, a convenient kitchenette, storage, and flexible open workspace that can accommodate a variety of office or personal-service uses. Pride of ownership is evident throughout the property, making it an ideal location for professional services, medical/healthcare, wellness, or administrative use. Great space in an accessible location. TI's may be available for qualified tenants.

Essential Information

  • MLS® #SN25252648
  • Price$1,885
  • Bathrooms0.00
  • Acres0.71
  • Year Built2006
  • TypeCommercial Lease
  • Sub-TypeOffice
  • StatusActive

Community Information

  • Address1070 W Wood Street # B
  • CityWillows
  • CountyGlenn
  • Zip Code95988

Interior

  • HeatingCentral
  • CoolingCentral Air
  • # of Stories1

Exterior

  • Lot DescriptionCorner Lot, Walkstreet

Additional Information

  • Date ListedNovember 3rd, 2025
  • Days on Market18

Listing Details

  • AgentCarrie Welch
  • OfficeCapital Rivers Commercial Inc
Please provide a valid email address.

Carrie Welch, Capital Rivers Commercial Inc.

Based on information from California Regional Multiple Listing Service, Inc. as of November 21st, 2025 at 4:15am PST. This information is for your personal, non-commercial use and may not be used for any purpose other than to identify prospective properties you may be interested in purchasing. Display of MLS data is usually deemed reliable but is NOT guaranteed accurate by the MLS. Buyers are responsible for verifying the accuracy of all information and should investigate the data themselves or retain appropriate professionals. Information from sources other than the Listing Agent may have been included in the MLS data. Unless otherwise specified in writing, Broker/Agent has not and will not verify any information obtained from other sources. The Broker/Agent providing the information contained herein may or may not have been the Listing and/or Selling Agent.