Connect

Find us on...

Dashboard

Login using...

Shawn Bengtson

Office Broker - DRE 01236964

  • Office 760-805-7199
Questions?

651 Thunderbolt Street, Chico – $7,684

  • $7.7k Price
  • .62 Acres
  • 113 DOM
  • $7.7k Price
  • .62 Acres
  • 113 DOM

651 Thunderbolt Street

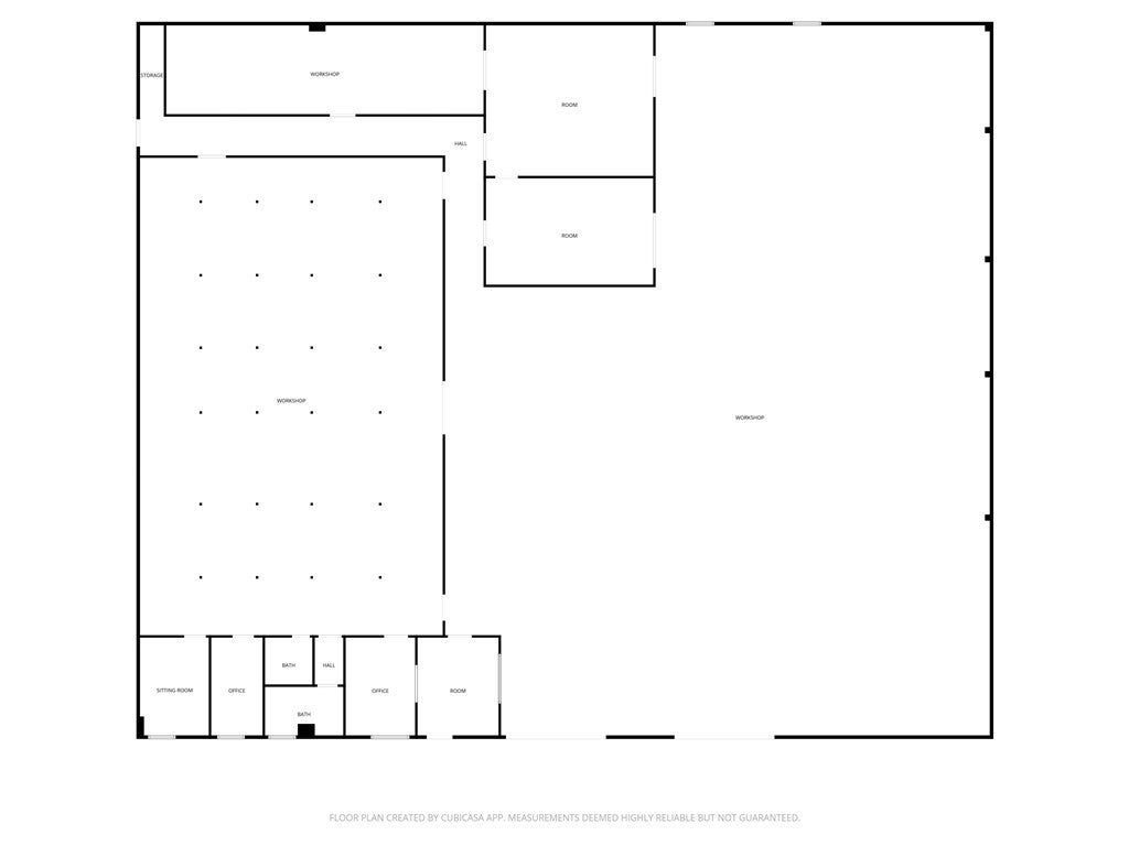
Warehouse with approximately 7,000+/- SF of fenced yard space, one grade-level roll-up door and one recessed truck-well, dock-high position (interior well). Significant power is available with 480 V/3 phase power with two three phase capacities, one ~30 kVA and one ~75 KVA offering flexibility for those users requiring heavy power capacity. Warehouse has fire suppression throughout and has numerous interior hose bibs. Office, break area and reception with HVAC. Metal roof with skylights and a large clear span work area.

Essential Information

  • MLS® #SN25255248
  • Price$7,684
  • Bathrooms0.00
  • Acres0.62
  • Year Built1970
  • TypeCommercial Lease
  • Sub-TypeIndustrial
  • StatusActive

Community Information

  • Address651 Thunderbolt Street
  • CityChico
  • CountyButte
  • Zip Code95973

Interior

  • # of Stories1

Exterior

  • Lot DescriptionRectangular Lot

Additional Information

  • Date ListedNovember 6th, 2025
  • Days on Market113

Listing Details

  • AgentCarrie Welch
  • OfficeCapital Rivers Commercial Inc
Please provide a valid email address.

Carrie Welch, Capital Rivers Commercial Inc.

Based on information from California Regional Multiple Listing Service, Inc. as of February 27th, 2026 at 5:55am PST. This information is for your personal, non-commercial use and may not be used for any purpose other than to identify prospective properties you may be interested in purchasing. Display of MLS data is usually deemed reliable but is NOT guaranteed accurate by the MLS. Buyers are responsible for verifying the accuracy of all information and should investigate the data themselves or retain appropriate professionals. Information from sources other than the Listing Agent may have been included in the MLS data. Unless otherwise specified in writing, Broker/Agent has not and will not verify any information obtained from other sources. The Broker/Agent providing the information contained herein may or may not have been the Listing and/or Selling Agent.