Connect

Find us on...

Dashboard

Login using...

Shawn Bengtson

Office Broker - DRE 01236964

  • Office 760-805-7199
Questions?

1371 Cortina Drive, Orland – $650,000

  • $650k Price
  • .41 Acres
  • 53 DOM
  • $650k Price
  • .41 Acres
  • 53 DOM

1371 Cortina Drive

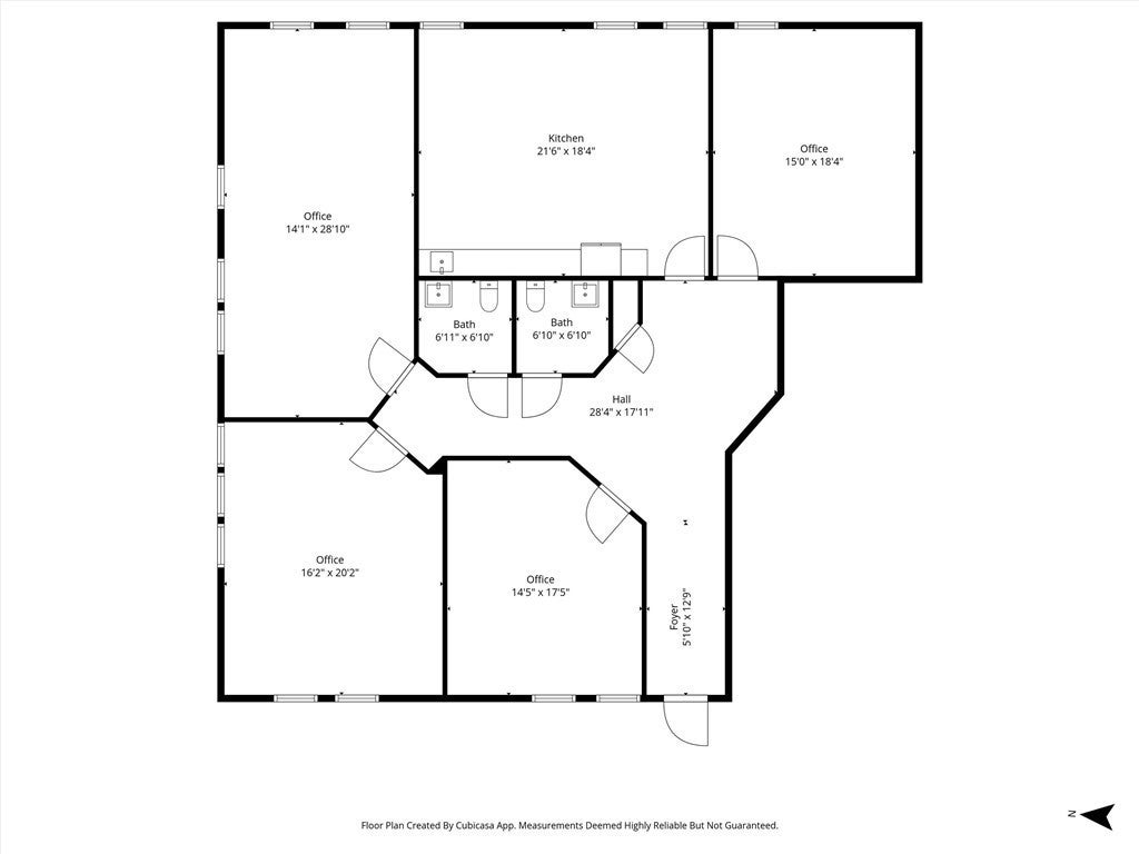
Situated near the I-5 Corridor with excellent freeway access, this location remains highly desirable for professional tenants. The building’s thoughtful layout, modern systems, and strong curb appeal ensure continued demand and long-term stability. This Income-Producing Office Building at 1371 Cortina Dr. offers immediate, reliable cash flow with a strong Stable Triple-Net Lease Through Nov. 2026. The rate of return on your investment is excellent! This is a turnkey investment opportunity ideal for investors seeking low-maintenance income. This office was built in 2009 and features 3,500 SQFT of usable space. The property features two separate, fully optimized office spaces; Suite 150: (Approximately 2100 SQFT) Four private offices, spacious conference room with kitchenette that boasts vast open space, 2 bathrooms, and extensive natural light throughout—designed for high functionality and tenant appeal. Suite 140: (Approximately 1,400 SQFT) Three private offices, foyer, dedicated reception space, additional admin room, and bathroom. This opportunity is a clean, hands-off, income-producing asset—rare to find in this condition and location. Owners have taken excellent care of the property. Call your agent today for a private showing. Buyer to verify all information to their satisfaction. Current lease is available with income and expenses to qualified buyers.

Essential Information

  • MLS® #SN25264612
  • Price$650,000
  • Bathrooms0.00
  • Acres0.41
  • Year Built2009
  • TypeCommercial Sale
  • Sub-TypeOffice
  • StatusActive Under Contract

Community Information

  • Address1371 Cortina Drive
  • CityOrland
  • CountyGlenn
  • Zip Code95963

Interior

  • HeatingCentral
  • CoolingCentral Air
  • # of Stories1

Exterior

  • ExteriorStucco
  • RoofTile
  • ConstructionStucco

Lot Description

Drip Irrigation/Bubblers, Landscaped, Sprinkler System, Street Level

Additional Information

  • Date ListedNovember 21st, 2025
  • Days on Market53

Listing Details

  • AgentHeather Boer

Office

HB Ranch and Home Properties, EXP of Northern Ca

Please provide a valid email address.

Price Change History for 1371 Cortina Drive, Orland, (MLS® #SN25264612)

Date Details Change
Status Changed from Active to Active Under Contract

Heather Boer, HB Ranch and Home Properties, EXP of Northern Ca.

Based on information from California Regional Multiple Listing Service, Inc. as of January 13th, 2026 at 12:35am PST. This information is for your personal, non-commercial use and may not be used for any purpose other than to identify prospective properties you may be interested in purchasing. Display of MLS data is usually deemed reliable but is NOT guaranteed accurate by the MLS. Buyers are responsible for verifying the accuracy of all information and should investigate the data themselves or retain appropriate professionals. Information from sources other than the Listing Agent may have been included in the MLS data. Unless otherwise specified in writing, Broker/Agent has not and will not verify any information obtained from other sources. The Broker/Agent providing the information contained herein may or may not have been the Listing and/or Selling Agent.