Connect

Find us on...

Dashboard

Login using...

Shawn Bengtson

Office Broker - DRE 01236964

  • Office 760-805-7199
Questions?

123 Henshaw Avenue # 616, Chico – $80,500

  • 3 Beds
  • 2 Baths
  • 1,368 Sqft
  • 4 DOM
  • 3 Beds
  • 2 Baths
  • 1,368 Sqft
  • 4 DOM

123 Henshaw Avenue # 616

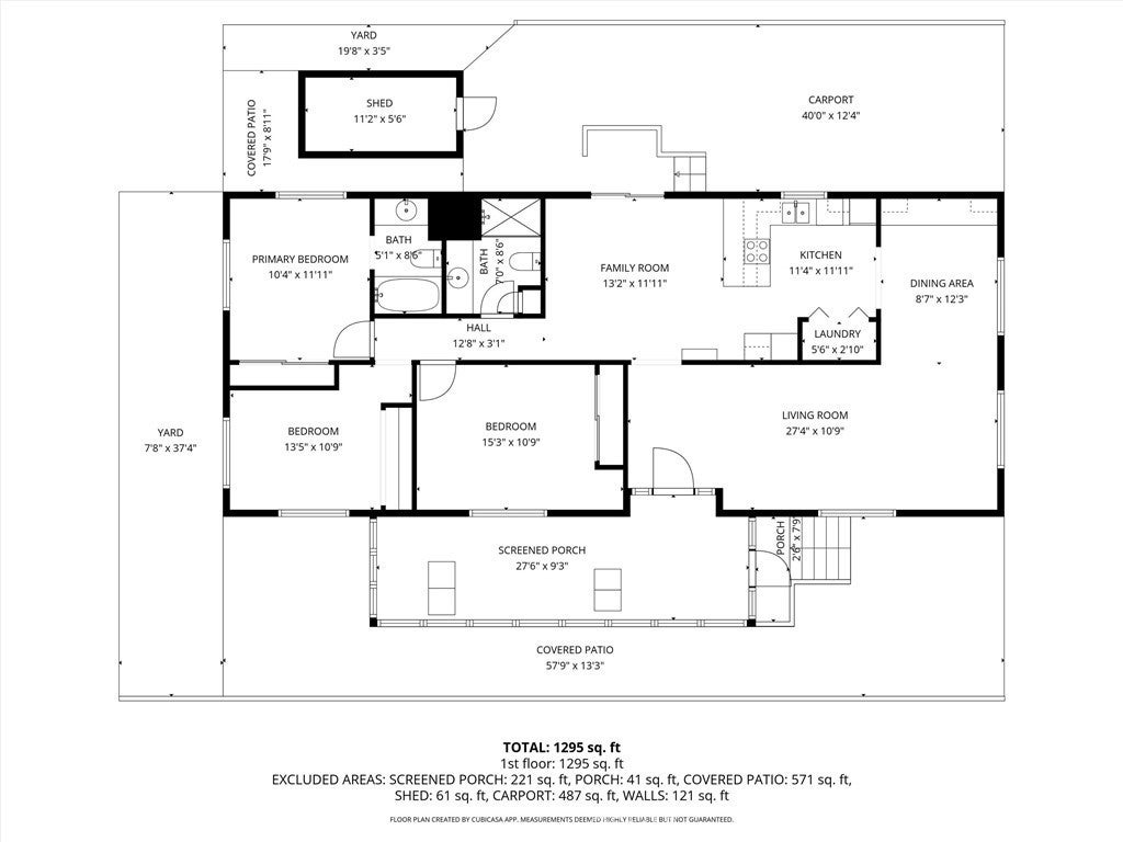
Welcome to Kentwood Mobile Estates, a well-established 55+ senior community offering one of the lower space rents in Chico along with desirable amenities. This 3-bedroom, 2-bath home offers approximately 1,368 sq ft (24’ x 57’) and presents a functional layout with excellent covered outdoor spaces. The roof was professionally coated in 2021, providing added weather protection and ongoing maintenance benefit. Exterior features include a full-length covered carport with privacy siding, a large covered and enclosed front porch, an additional covered walkway, and a wood-frame storage shed. A handicap lift provides added accessibility. Community amenities include a clubhouse, exercise room, and community swimming pool. The park also features convenient back-gate access to the adjacent shopping center, with this home located close to the gate for easy access to nearby shops and services. An excellent opportunity to own in a senior community offering affordability, amenities, and a convenient location.

Essential Information

  • MLS® #SN25276264
  • Price$80,500
  • Bedrooms3
  • Bathrooms2.00
  • Full Baths1
  • Square Footage1,368
  • Acres0.00
  • Year Built1971
  • TypeManufactured In Park
  • StatusActive

Community Information

  • Address123 Henshaw Avenue # 616
  • CityChico
  • CountyButte
  • Zip Code95973

Amenities

  • ParkingCovered
  • GaragesCovered
  • ViewNeighborhood
  • PoolNone

Utilities

Electricity Available, Electricity Connected, Natural Gas Available, Natural Gas Connected, Sewer Connected, Water Available, Water Connected, Sewer, Trash Collection, Water

Interior

  • InteriorCarpet, Vinyl
  • HeatingCentral
  • CoolingCentral Air
  • # of Stories1
  • StoriesOne

Appliances

Dishwasher, Electric Cooktop, Electric Oven, Disposal, Microwave, Refrigerator

Exterior

  • Exterior FeaturesAwning(s)
  • Lot DescriptionZeroToOneUnitAcre
  • WindowsDrapes

School Information

  • DistrictChico Unified

Additional Information

  • Date ListedDecember 16th, 2025
  • Days on Market4

Listing Details

  • AgentNorm Atkin
  • OfficeAtkin Real Estate Inc
Please provide a valid email address.

Norm Atkin, Atkin Real Estate Inc.

Based on information from California Regional Multiple Listing Service, Inc. as of December 22nd, 2025 at 9:55am PST. This information is for your personal, non-commercial use and may not be used for any purpose other than to identify prospective properties you may be interested in purchasing. Display of MLS data is usually deemed reliable but is NOT guaranteed accurate by the MLS. Buyers are responsible for verifying the accuracy of all information and should investigate the data themselves or retain appropriate professionals. Information from sources other than the Listing Agent may have been included in the MLS data. Unless otherwise specified in writing, Broker/Agent has not and will not verify any information obtained from other sources. The Broker/Agent providing the information contained herein may or may not have been the Listing and/or Selling Agent.