Connect

Find us on...

Dashboard

Login using...

Shawn Bengtson

Office Broker - DRE 01236964

  • Office 760-805-7199
Questions?

995 Nord Avenue # 120, Chico – $1,463

  • $1.5k Price
  • .93 Acres
  • 3 DOM
  • $1.5k Price
  • .93 Acres
  • 3 DOM

995 Nord Avenue # 120

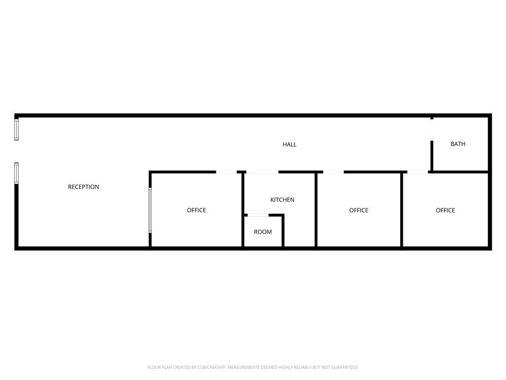
Move-in ready in-line commercial space available at 995 Nord Avenue, Suite 120. This versatile suite is well suited for a variety of office or retail uses and is located in a high-traffic, highly visible neighborhood center. The space features three private offices, a reception and waiting area, a convenient break area, and a private restroom providing a functional and professional layout for many business types. Surrounded by established neighboring tenants including Slyderz Grill, a Cheese Steak Shop, Mondo’s Coffeehouse, and ISM Management Company, the property benefits from consistent daily foot and vehicle traffic. Directly across the street from a Safeway-anchored shopping center and in close proximity to CSU Chico, this location offers strong exposure and accessibility. The center is professionally managed and well maintained, making it an ideal opportunity for businesses seeking a turnkey space in a proven Chico location. NNN Lease

Essential Information

  • MLS® #SN25279794
  • Price$1,463
  • Bathrooms0.00
  • Acres0.93
  • Year Built2005
  • TypeCommercial Lease
  • Sub-TypeOffice
  • StatusActive

Community Information

  • Address995 Nord Avenue # 120
  • CityChico
  • CountyButte
  • Zip Code95926

Interior

  • HeatingCentral
  • CoolingCentral Air
  • # of Stories1

Exterior

  • Lot DescriptionWalkstreet

Additional Information

  • Date ListedDecember 23rd, 2025
  • Days on Market3

Listing Details

  • AgentCarrie Welch
  • OfficeCapital Rivers Commercial Inc
Please provide a valid email address.

Carrie Welch, Capital Rivers Commercial Inc.

Based on information from California Regional Multiple Listing Service, Inc. as of December 26th, 2025 at 2:56am PST. This information is for your personal, non-commercial use and may not be used for any purpose other than to identify prospective properties you may be interested in purchasing. Display of MLS data is usually deemed reliable but is NOT guaranteed accurate by the MLS. Buyers are responsible for verifying the accuracy of all information and should investigate the data themselves or retain appropriate professionals. Information from sources other than the Listing Agent may have been included in the MLS data. Unless otherwise specified in writing, Broker/Agent has not and will not verify any information obtained from other sources. The Broker/Agent providing the information contained herein may or may not have been the Listing and/or Selling Agent.