Connect

Find us on...

Dashboard

Login using...

Shawn Bengtson

Office Broker - DRE 01236964

  • Office 760-805-7199
Questions?

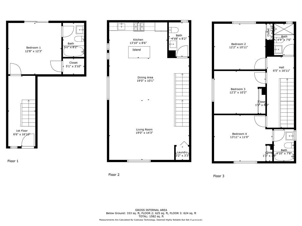
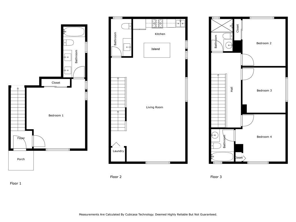
6845 Haskell Avenue, Lake Balboa – $2,695,000

  • 12 Beds
  • 13 Baths
  • .12 Acres
  • 74 DOM
  • 12 Beds
  • 13 Baths
  • .12 Acres
  • 74 DOM

6845 Haskell Avenue

Welcome to a premier, 2 years old residential income property in Lake Balboa. This modern two-building complex features four units across two addresses: 6843 1 & 2 and 6845 1 & 2 Haskell Ave. The property includes: A front single-family home with 3 beds, 4 baths, and an attached 1-bed, 1-bath ADU A rear duplex with two units, each offering 4 beds and 4 baths Highlights: Gated parking with 6 spaces Separate meters and panels for each unit Solar panels per unit (excl. ADU) High-end finishes: quartz counters, stainless steel appliances, Nest thermostats Fire sprinklers and double-paned windows throughout Fully rented with annual rental income: $184K. Ideal for investors seeking a modern, high-yield asset with easy freeway access and premium amenities.

Essential Information

  • MLS® #SR23163447
  • Price$2,695,000
  • Bedrooms12
  • Bathrooms13.00
  • Acres0.12
  • Year Built2023
  • TypeResidential Income
  • Sub-TypeSingle Family Residence
  • StyleModern
  • StatusActive

Community Information

  • Address6845 Haskell Avenue
  • AreaLKBL - Lake Balboa
  • CityLake Balboa
  • CountyLos Angeles
  • Zip Code91406

Amenities

  • Parking Spaces6
  • ParkingAssigned, Driveway Level
  • # of Garages6
  • GaragesAssigned, Driveway Level
  • ViewCity Lights, Courtyard
  • PoolNone

Amenities

Electricity, Maintenance Grounds, Management

Utilities

Cable Connected, Electricity Connected, Natural Gas Connected, Sewer Connected, Water Connected

Interior

  • InteriorVinyl
  • HeatingCentral, Ductless
  • FireplacesNone
  • # of Stories3
  • StoriesThree Or More

Interior Features

Bedroom on Main Level, Main Level Primary, Walk-In Closet(s)

Appliances

SixBurnerStove, Dishwasher, Free-Standing Range, Gas Cooktop, Microwave, Refrigerator, Tankless Water Heater, Water To Refrigerator, Water Purifier

Cooling

Central Air, Ductless, Electric, Gas

Exterior

  • ExteriorPlaster, Stucco, Vinyl Siding
  • Exterior FeaturesRain Gutters
  • Lot DescriptionTwoToFiveUnitsAcre
  • RoofFlat
  • ConstructionPlaster, Stucco, Vinyl Siding
  • FoundationSlab

Windows

Double Pane Windows, Insulated Windows, Screens

Additional Information

  • Date ListedSeptember 11th, 2025
  • Days on Market74
  • ZoningLAR3

Listing Details

  • AgentBijan Kamrava
  • OfficeBijan Team Realty
Please provide a valid email address.

Bijan Kamrava, Bijan Team Realty.

Based on information from California Regional Multiple Listing Service, Inc. as of November 23rd, 2025 at 11:15pm PST. This information is for your personal, non-commercial use and may not be used for any purpose other than to identify prospective properties you may be interested in purchasing. Display of MLS data is usually deemed reliable but is NOT guaranteed accurate by the MLS. Buyers are responsible for verifying the accuracy of all information and should investigate the data themselves or retain appropriate professionals. Information from sources other than the Listing Agent may have been included in the MLS data. Unless otherwise specified in writing, Broker/Agent has not and will not verify any information obtained from other sources. The Broker/Agent providing the information contained herein may or may not have been the Listing and/or Selling Agent.