Connect

Find us on...

Dashboard

Login using...

Shawn Bengtson

Office Broker - DRE 01236964

  • Office 760-805-7199
Questions?

Auburn Avenue, Adelanto – $599,000

  • $599k Price
  • 2 Acres
  • 676 DOM
  • $599k Price
  • 2 Acres
  • 676 DOM

Auburn Avenue

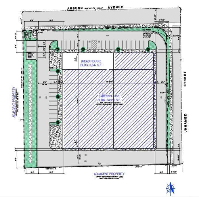
MOTIVATED SELLER - SUBMIT OFFERS. Located in the City of Adelanto's #1 Priority Cannabis/Industrial ADD (Airport Development District) Zoned property. It is Located just East of Highway 395 on Auburn Avenue. This 2.07-acre Parcel is Entitled for a 38,762 SF Cultivation/Industrial Building. The Project is Ready for CUP Final Approval. Grading Permits are Ready to get started for the Development of the Project. Highly Desired Utilities located along the Frontage of Auburn Avenue just east of the 395 Hwy. Auburn Avenue has recently been Paved from the 395 Hwy to Adelanto Road. The Project is Ready to Build. The Water, Sewer, and Power are Located at the property on Auburn Avenue. The Property is ready to Move Forward for development and Saving the Cost of Running Utilities for the Cannabis/Industrial development Site. The Recently Proposed "Travel Center" is contiguous to the West Side of the Subject Property. Bringing an 11.81-acre project that includes a Gas Station & Convenience Store, 3,400 SF of Restaurant, 10,500 SF of Retail Space, 16,702 SF Super Market, an Automated Car Wash, a 68,054 SF, 3-story Hotel, 3 driveways with ingress and egress along Auburn Ave., Lots of additional parking to be included as well. The City Public Water line is located at the front of the property running along Auburn Avenue. The City Public Sewer line is located at the front of the property running along Auburn Avenue. Plans, Engineering, and Renderings are Available upon Request. The Buildings are allowed to be used for many Industrial Uses. The City of Adelanto's low Cannabis Tax Rate and User-Friendly Planning process make this highly desirable. Contact Eric Girod at 310.691.0146 for Additional Information.

Essential Information

  • MLS® #SR24074462
  • Price$599,000
  • Bathrooms0.00
  • Acres2.00
  • TypeLand
  • StatusActive

Community Information

  • AddressAuburn Avenue
  • AreaADL - Adelanto
  • CityAdelanto
  • CountySan Bernardino
  • Zip Code92301

Amenities

  • ViewDesert

Exterior

  • Lot DescriptionCorner Lot

Additional Information

  • Date ListedApril 14th, 2024
  • Days on Market676
  • ZoningADD-Airport Development

Listing Details

  • AgentCynthia Burts
  • OfficeBurts & Associates
Please provide a valid email address.

Cynthia Burts, Burts & Associates.

Based on information from California Regional Multiple Listing Service, Inc. as of February 20th, 2026 at 3:11am PST. This information is for your personal, non-commercial use and may not be used for any purpose other than to identify prospective properties you may be interested in purchasing. Display of MLS data is usually deemed reliable but is NOT guaranteed accurate by the MLS. Buyers are responsible for verifying the accuracy of all information and should investigate the data themselves or retain appropriate professionals. Information from sources other than the Listing Agent may have been included in the MLS data. Unless otherwise specified in writing, Broker/Agent has not and will not verify any information obtained from other sources. The Broker/Agent providing the information contained herein may or may not have been the Listing and/or Selling Agent.