Connect

Find us on...

Dashboard

Login using...

Shawn Bengtson

Office Broker - DRE 01236964

  • Office 760-805-7199
Questions?

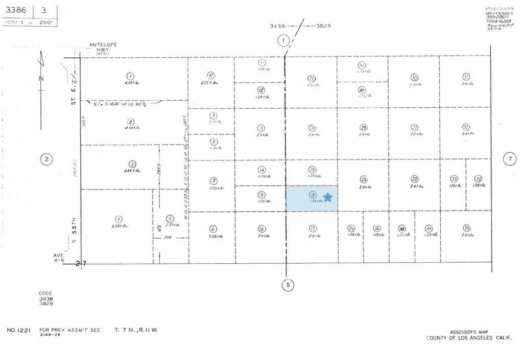
W Vicinity Ave K-8 & 58th St E, Lancaster – $10,000

  • $10k Price
  • Acres
  • 295 DOM
  • $10k Price
  • Acres
  • 295 DOM

W Vicinity Ave K-8 & 58th St E

1.25 acres in the City of Lancaster zoned for Rural Residential use, located in a developing area not far from the upcoming Lancaster Clean Energy Center. A level, usable parcel with electric less than a 1000' away. Legal access to parcel will need to be developed as there are no known existing easements. An affordable investment with a lot of upside potential! *Buyer to make their own independent investigations regarding Zoning & General Plan Designations, Environmental & Hazard Zones, Access & Development Costs, Availability & Costs of Utilities.

Essential Information

  • MLS® #SR25027535
  • Price$10,000
  • Bathrooms0.00
  • Acres1.25
  • TypeLand
  • StatusActive

Community Information

  • AddressW Vicinity Ave K-8 & 58th St E
  • AreaLAC - Lancaster
  • CityLancaster
  • CountyLos Angeles
  • Zip Code93535

Amenities

  • ViewDesert

Utilities

None, Sewer Not Available, Water Not Available

Exterior

  • Lot DescriptionLevel, Rectangular Lot

Additional Information

  • Date ListedFebruary 6th, 2025
  • Days on Market295
  • ZoningRR 2.5

Listing Details

  • AgentKarmen Mastin
  • OfficeBig Valley Real Estate
Please provide a valid email address.

Price Change History for W Vicinity Ave K-8 & 58th St E, Lancaster, (MLS® #SR25027535)

Date Details Change
Status Changed from Pending to Active
Status Changed from Active to Pending
Price Reduced from $12,500 to $10,000 $2,500 (20.00%)
Price Increased from $11,500 to $12,500 $1,000 (8.70%)

Karmen Mastin, Big Valley Real Estate.

Based on information from California Regional Multiple Listing Service, Inc. as of December 17th, 2025 at 12:12am PST. This information is for your personal, non-commercial use and may not be used for any purpose other than to identify prospective properties you may be interested in purchasing. Display of MLS data is usually deemed reliable but is NOT guaranteed accurate by the MLS. Buyers are responsible for verifying the accuracy of all information and should investigate the data themselves or retain appropriate professionals. Information from sources other than the Listing Agent may have been included in the MLS data. Unless otherwise specified in writing, Broker/Agent has not and will not verify any information obtained from other sources. The Broker/Agent providing the information contained herein may or may not have been the Listing and/or Selling Agent.