Connect

Find us on...

Dashboard

Login using...

Shawn Bengtson

Office Broker - DRE 01236964

  • Office 760-805-7199
Questions?

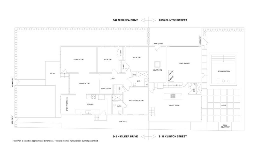
542 N Kilkea Drive, Los Angeles – $2,850,000

  • 5 Beds
  • 5 Baths
  • .16 Acres
  • 136 DOM
  • 5 Beds
  • 5 Baths
  • .16 Acres
  • 136 DOM

542 N Kilkea Drive

**Huge Price Adjustment** A rare opportunity to own two fully renovated homes on one of the largest parcels in Beverly Grove! Set behind privacy hedges, this exceptional property features two standalone residences, each with private entrances. Ideal for owner-occupants, multi-generational living, or investors. 542 N Kilkea Drive is a single-story Spanish-style home with cathedral ceilings, three spacious bedrooms, ensuite master bathroom, plus a second full bathroom. Inside, enjoy a bright, open layout and warm, inviting living space ideal for both entertaining and everyday comfort. The front door opens to a private yard with lush landscaping and a newly poured patio, perfect for outdoor dining or quiet morning coffee. 8116 Clinton Street is a two-story home with two sizable bedrooms, ensuite master bathroom, plus two additional full bathrooms, and custom closets. Take in a view of the Hollywood Hills from the master bedroom, relax on the balcony and watch a beautiful California sunset, or take a seat in the entry courtyard and unwind under the canopy of the beautiful tree that serves as the centerpiece to the home’s entrance. In the rear, take a dip in the newly built, fully heated saltwater pool with in-water barstools and waterfall, surrounded by lush green lawn. A two-car garage serves the Clinton residence; the Kilkea residence features ample street parking. Both homes have been fully transformed, including updated electrical and plumbing systems, energy-efficient windows, new kitchens with Samsung stainless steel appliances, central AC/heat, tankless water heaters, smart-home enabled, security suite with CCTV, and restored original hardwood flooring. Both homes are delivered vacant and are income-ready with high rental potential. Live in one, rent the other - or lease both and hold a premier dual-income asset in one of LA's most walkable zones. The Melrose Place Farmers Market, Melrose Trading Post, Grove, Beverly Center, and Fairfax District are within minutes. Don’t miss this one-of-a-kind property offering space, privacy, and flexibility.

Essential Information

  • MLS® #SR25147024
  • Price$2,850,000
  • Bedrooms5
  • Bathrooms5.00
  • Acres0.16
  • Year Built1926
  • TypeResidential Income
  • Sub-TypeDuplex
  • StyleSpanish, Traditional
  • StatusActive

Community Information

  • Address542 N Kilkea Drive
  • CityLos Angeles
  • CountyLos Angeles
  • Zip Code90048

Area

C19 - Beverly Center-Miracle Mile

Amenities

  • Parking Spaces2
  • ParkingDoor-Single, Garage, On Street
  • # of Garages2
  • GaragesDoor-Single, Garage, On Street
  • Has PoolYes
  • PoolPrivate, Salt Water

Utilities

Electricity Connected, Sewer Connected, Water Connected

View

City Lights, Hills, Peek-A-Boo, Trees/Woods

Interior

  • HeatingCentral
  • CoolingCentral Air
  • FireplacesNone
  • # of Stories2
  • StoriesOne, Two

Interior Features

Balcony, Cathedral Ceiling(s), Open Floorplan, Recessed Lighting, All Bedrooms Down, Bedroom on Main Level, Walk-In Closet(s)

Appliances

Dishwasher, Electric Cooktop, Electric Oven, Microwave, Tankless Water Heater, Water Heater, Dryer, Washer

Exterior

  • ExteriorCopper Plumbing
  • Lot DescriptionCorner Lot
  • WindowsDouble Pane Windows
  • RoofAsphalt, Composition, Shingle
  • ConstructionCopper Plumbing
  • FoundationRaised

Additional Information

  • Date ListedJuly 1st, 2025
  • Days on Market136
  • ZoningLAR1

Listing Details

  • AgentAli Dehdashty
  • OfficeAmluck Realty Inc.
Please provide a valid email address.

Price Change History for 542 N Kilkea Drive, Los Angeles, (MLS® #SR25147024)

Date Details Change
Price Reduced from $2,995,000 to $2,850,000 $145,000 (4.84%)

Ali Dehdashty, Amluck Realty Inc..

Based on information from California Regional Multiple Listing Service, Inc. as of November 23rd, 2025 at 8:41am PST. This information is for your personal, non-commercial use and may not be used for any purpose other than to identify prospective properties you may be interested in purchasing. Display of MLS data is usually deemed reliable but is NOT guaranteed accurate by the MLS. Buyers are responsible for verifying the accuracy of all information and should investigate the data themselves or retain appropriate professionals. Information from sources other than the Listing Agent may have been included in the MLS data. Unless otherwise specified in writing, Broker/Agent has not and will not verify any information obtained from other sources. The Broker/Agent providing the information contained herein may or may not have been the Listing and/or Selling Agent.