Connect

Find us on...

Dashboard

Login using...

Shawn Bengtson

Office Broker - DRE 01236964

  • Office 760-805-7199
Questions?

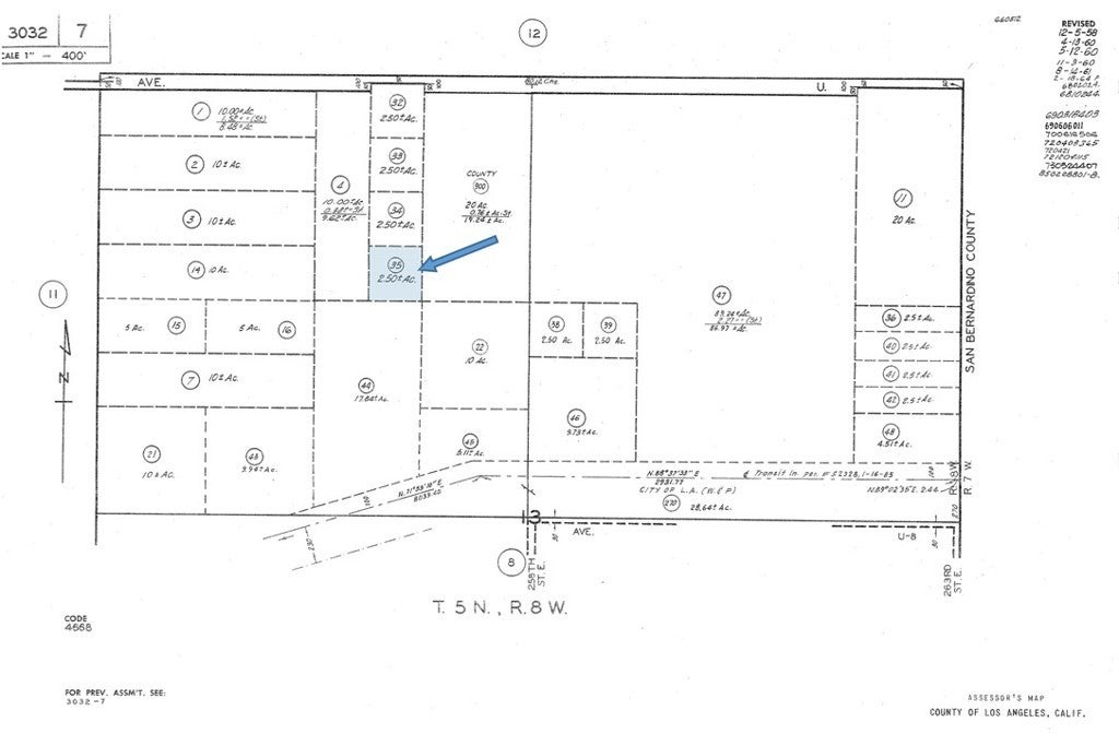
Avenue U4 & 257th St E, Llano – $11,000

  • $11k Price
  • Acres
  • 235 DOM
  • $11k Price
  • Acres
  • 235 DOM

Avenue U4 & 257th St E

Affordable level 2.5 Acres, A2 zoned, located 3 parcels south of Ave U, and less than a mile from the Los Angeles/San Bernardino County Line. This parcel has a Certificate of Exception which will save on future development costs, and access to Ave U provided by a recorded Declaration and Grant of Easements that just needs cutting in. Great Opportunity! *Buyer to make their own independent investigations regarding Zoning & General Plan Designations, Environmental & Hazard Zones, Access & Development Costs, Availability & Costs of Utilities.

Essential Information

  • MLS® #SR25151837
  • Price$11,000
  • Bathrooms0.00
  • Acres2.50
  • TypeLand
  • StatusActive

Community Information

  • AddressAvenue U4 & 257th St E
  • AreaLLO - Llano
  • CityLlano
  • CountyLos Angeles
  • Zip Code93544

Amenities

  • ViewDesert

Utilities

None, Sewer Not Available, Water Not Available

Exterior

  • Lot DescriptionAgricultural, Level

Additional Information

  • Date ListedJuly 7th, 2025
  • Days on Market235
  • ZoningA-2-2

Listing Details

  • AgentKarmen Mastin
  • OfficeBig Valley Real Estate
Please provide a valid email address.

Price Change History for Avenue U4 & 257th St E, Llano, (MLS® #SR25151837)

Date Details Change
Price Increased from $1,100 to $11,000 $9,900 (900.00%)

Karmen Mastin, Big Valley Real Estate.

Based on information from California Regional Multiple Listing Service, Inc. as of February 28th, 2026 at 12:56pm PST. This information is for your personal, non-commercial use and may not be used for any purpose other than to identify prospective properties you may be interested in purchasing. Display of MLS data is usually deemed reliable but is NOT guaranteed accurate by the MLS. Buyers are responsible for verifying the accuracy of all information and should investigate the data themselves or retain appropriate professionals. Information from sources other than the Listing Agent may have been included in the MLS data. Unless otherwise specified in writing, Broker/Agent has not and will not verify any information obtained from other sources. The Broker/Agent providing the information contained herein may or may not have been the Listing and/or Selling Agent.