Connect

Find us on...

Dashboard

Login using...

Shawn Bengtson

Office Broker - DRE 01236964

  • Office 760-805-7199
Questions?

10637 Midway Avenue, Cerritos – $22,400

  • $22.4k Price
  • .79 Acres
  • 97 DOM
  • $22.4k Price
  • .79 Acres
  • 97 DOM

10637 Midway Avenue

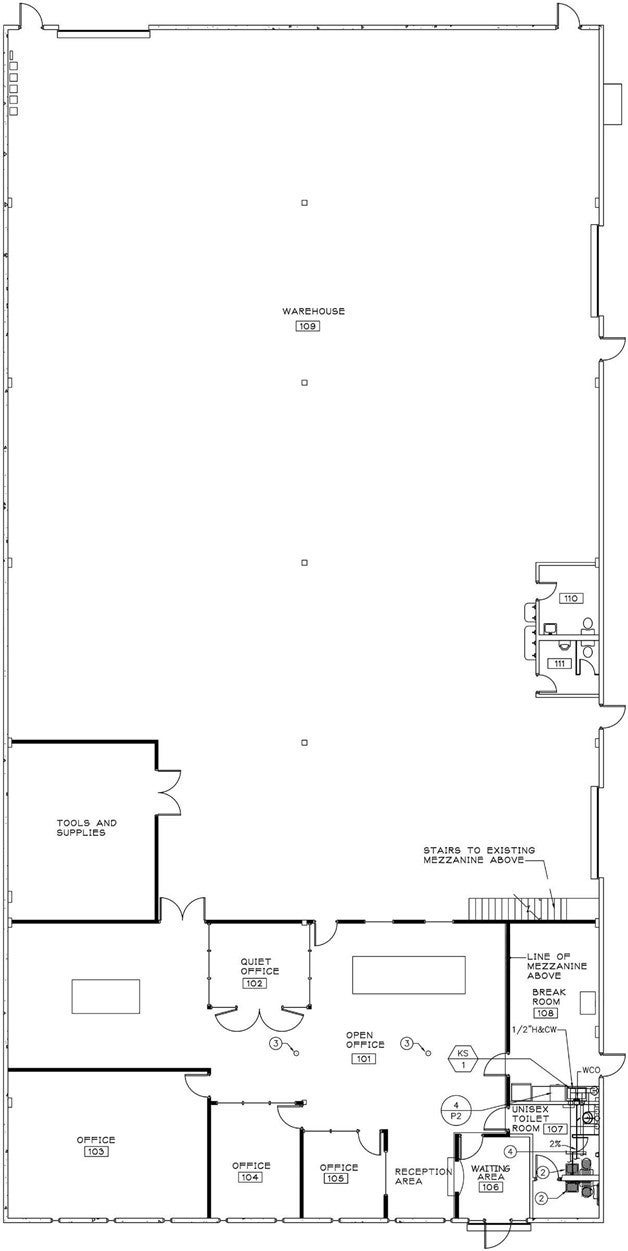
Prime Cerritos location. Private fenced 34,562 SF yard. There is a total of 12,800 SF or which 9600 SF is warehouse, 3200 SF office plus 545 SF of mexxanine space. Updated and remodeled interior. There are four roll up doors and one loading dock. There are 4 offices plus one of the offices has sound proofing. The street is a cul-de-sac. Perfect for contractor or business that wants plentiful parking and private yard. Contact listing agent for showing instructions.

Essential Information

  • MLS® #SR25221376
  • Price$22,400
  • Bathrooms0.00
  • Acres0.79
  • TypeCommercial Lease
  • Sub-TypeIndustrial
  • StatusActive

Community Information

  • Address10637 Midway Avenue
  • AreaRA - Cerritos North of 91 Frwy
  • CityCerritos
  • CountyLos Angeles
  • Zip Code90703

Amenities

Utilities

Electricity Connected, Sewer Connected, Water Connected

Interior

  • # of Stories1

Cooling

Central Air, ENERGY STAR Qualified Equipment, High Efficiency, Zoned

Exterior

  • ExteriorConcrete
  • RoofAsphalt, Bitumen, Membrane
  • ConstructionConcrete

Lot Description

Cul-De-Sac, Drip Irrigation/Bubblers, Sprinklers In Front, Level, Paved, Rectangular Lot, Sprinklers Timer, Yard, Flat

Additional Information

  • Date ListedSeptember 19th, 2025
  • Days on Market97
  • ZoningM-C2

Listing Details

  • AgentKatherine Bergh
  • OfficeKatherine Bergh
Please provide a valid email address.

Price Change History for 10637 Midway Avenue, Cerritos, (MLS® #SR25221376)

Date Details Change
Price Increased from $0 to $22,400 $22,400

Katherine Bergh, Katherine Bergh.

Based on information from California Regional Multiple Listing Service, Inc. as of December 25th, 2025 at 8:26pm PST. This information is for your personal, non-commercial use and may not be used for any purpose other than to identify prospective properties you may be interested in purchasing. Display of MLS data is usually deemed reliable but is NOT guaranteed accurate by the MLS. Buyers are responsible for verifying the accuracy of all information and should investigate the data themselves or retain appropriate professionals. Information from sources other than the Listing Agent may have been included in the MLS data. Unless otherwise specified in writing, Broker/Agent has not and will not verify any information obtained from other sources. The Broker/Agent providing the information contained herein may or may not have been the Listing and/or Selling Agent.