Connect

Find us on...

Dashboard

Login using...

Shawn Bengtson

Office Broker - DRE 01236964

  • Office 760-805-7199
Questions?

4256 N Canoga Avenue, Woodland Hills – $325,000

  • $325k Price
  • .12 Acres
  • 51 DOM
  • $325k Price
  • .12 Acres
  • 51 DOM

4256 N Canoga Avenue

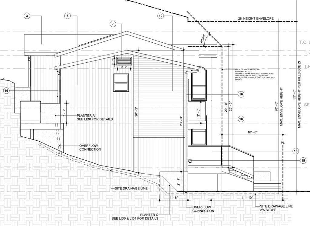
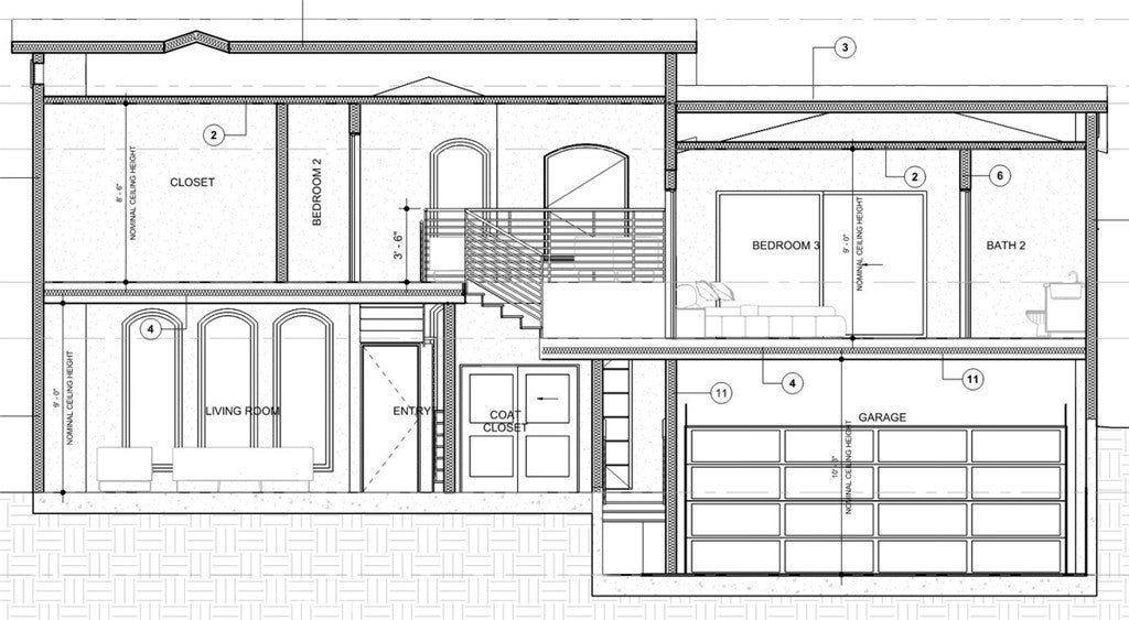
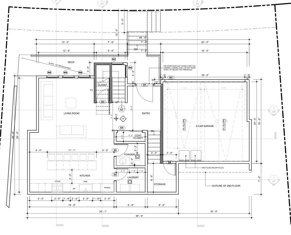
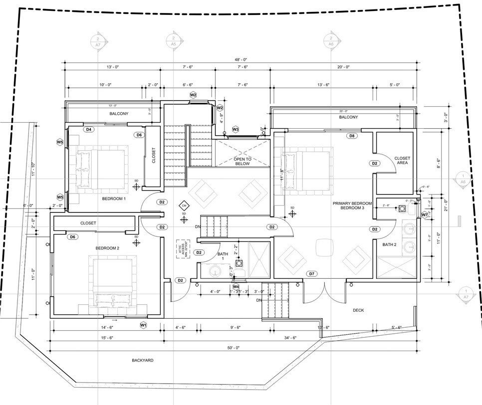
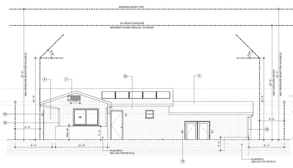
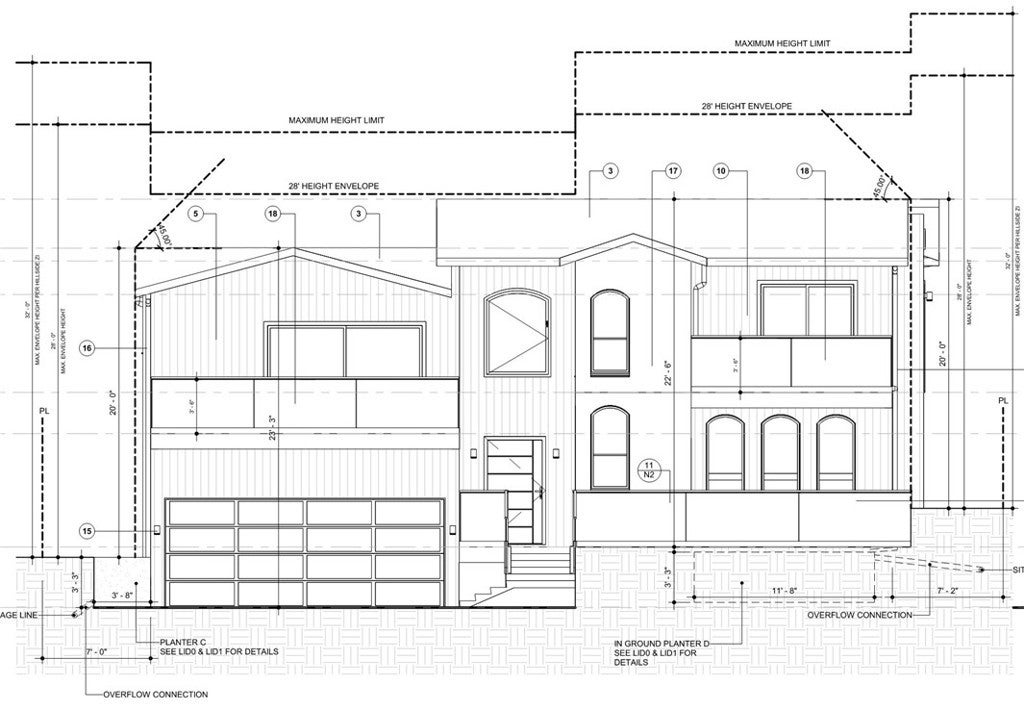
Vacant Lot with RTI Plans – 4256 Canoga Avenue (Lot No. 5256, Cut 1 & 2) Excellent opportunity to build a beautifully designed single-family residence in a highly desirable Woodland Hills neighborhood. The property comes RTI (Ready-to-Issue) with a full set of approved plans for a stylish home featuring approximately 2,179 sq. ft. of building area (1,915 sq. ft. RFA), including an attached garage. The lot is approximately 5,305 sq. ft. (per tax assessor) and is situated on an uphill site — no costly caisson work required. All approvals have been secured through the Mulholland Corridor Design Review Board, and the architectural, structural, grading, and landscape plans are included. Simply pull the permit and start construction immediately. This is a great opportunity to develop in a prime location surrounded by quality homes. The proposed design blends modern style with the natural hillside setting, creating a perfect balance of comfort and elegance. Note: Buyer to verify all information independently. Also, see listings for 4254 and 4260 Canoga Avenue for nearby opportunities.

Essential Information

  • MLS® #SR25237490
  • Price$325,000
  • Bathrooms0.00
  • Acres0.12
  • TypeLand
  • StatusActive

Community Information

  • Address4256 N Canoga Avenue
  • AreaWHLL - Woodland Hills
  • CityWoodland Hills
  • CountyLos Angeles
  • Zip Code91364

Amenities

  • ViewHills

Utilities

Cable Available, Electricity Available, Sewer Available, Water Available

Exterior

  • Lot DescriptionSloped Down, Front Yard

Additional Information

  • Date ListedOctober 9th, 2025
  • Days on Market51
  • ZoningR1

Listing Details

  • AgentBehnam Ansari
  • OfficeGold Star Realty
Please provide a valid email address.

Behnam Ansari, Gold Star Realty.

Based on information from California Regional Multiple Listing Service, Inc. as of November 30th, 2025 at 8:30pm PST. This information is for your personal, non-commercial use and may not be used for any purpose other than to identify prospective properties you may be interested in purchasing. Display of MLS data is usually deemed reliable but is NOT guaranteed accurate by the MLS. Buyers are responsible for verifying the accuracy of all information and should investigate the data themselves or retain appropriate professionals. Information from sources other than the Listing Agent may have been included in the MLS data. Unless otherwise specified in writing, Broker/Agent has not and will not verify any information obtained from other sources. The Broker/Agent providing the information contained herein may or may not have been the Listing and/or Selling Agent.