Connect

Find us on...

Dashboard

Login using...

Shawn Bengtson

Office Broker - DRE 01236964

  • Office 760-805-7199
Questions?

60 W Bellevue, Pasadena – $3,800,000

  • $3.8M Price
  • .16 Acres
  • 143 DOM
  • $3.8M Price
  • .16 Acres
  • 143 DOM

60 W Bellevue

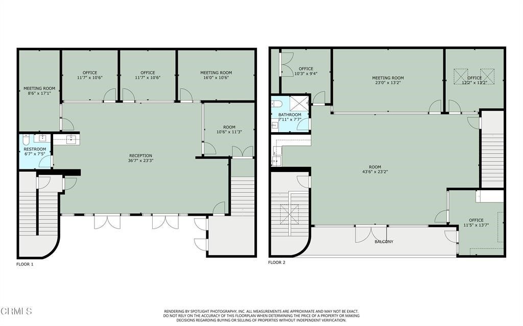
Presenting an unparalleled owner-user or investment opportunity in the heart of Pasadena. 60 W Bellevue Drive is a prestigious, freestanding two-story office building offering 4,480 sq. ft. of turn-key, high-image creative space. Originally built in 1986 and extensively remodeled to the highest standards in 2019, the property has been lightly used since and is primed for a modern business. The interior boasts a flexible open-concept layout with private offices, conference rooms, and contemporary finishes, perfectly suited for a dynamic corporate headquarters, design studio, or tech firm. Strategically located just west of Fair Oaks Avenue, the property provides outstanding freeway access to the 110, 210, and 134. It is situated moments from Pasadena's most significant landmarks, including Huntington Medical Center, Caltech, and the vibrant culture of Old Town Pasadena. With on-site gated parking for 9 vehicles, this is a rare chance to secure a premier, move-in ready commercial building in one of Southern California's most desirable markets.

Essential Information

  • MLS® #SR25242989
  • Price$3,800,000
  • Bathrooms0.00
  • Acres0.16
  • Year Built1986
  • TypeCommercial Sale
  • Sub-TypeOffice
  • StatusActive

Community Information

  • Address60 W Bellevue
  • Area647 - Pasadena (SW)
  • CityPasadena
  • CountyLos Angeles
  • Zip Code91105

Amenities

  • Parking Spaces9

Interior

  • HeatingCentral, Forced Air
  • CoolingCentral Air
  • # of Stories2

Exterior

  • ExteriorFrame, Concrete, Stucco
  • ConstructionFrame, Concrete, Stucco

Lot Description

Sprinklers In Front, Near Public Transit, Paved, Street Level

Additional Information

  • Date ListedOctober 20th, 2025
  • Days on Market143
  • ZoningSFO-CF

Listing Details

  • AgentOsaze Okunbo

Office

Real Brokerage Technologies, Inc.

Please provide a valid email address.

Osaze Okunbo, Real Brokerage Technologies, Inc..

Based on information from California Regional Multiple Listing Service, Inc. as of March 28th, 2026 at 10:30am PDT. This information is for your personal, non-commercial use and may not be used for any purpose other than to identify prospective properties you may be interested in purchasing. Display of MLS data is usually deemed reliable but is NOT guaranteed accurate by the MLS. Buyers are responsible for verifying the accuracy of all information and should investigate the data themselves or retain appropriate professionals. Information from sources other than the Listing Agent may have been included in the MLS data. Unless otherwise specified in writing, Broker/Agent has not and will not verify any information obtained from other sources. The Broker/Agent providing the information contained herein may or may not have been the Listing and/or Selling Agent.