Connect

Find us on...

Dashboard

Login using...

Shawn Bengtson

Office Broker - DRE 01236964

  • Office 760-805-7199
Questions?

300 E. Arbor Street # 12, Long Beach – $60,000

  • 1 Bed
  • 1 Bath
  • 672 Sqft
  • .02 Acres
  • 1 Bed
  • 1 Bath
  • 672 Sqft
  • .02 Acres

300 E. Arbor Street # 12

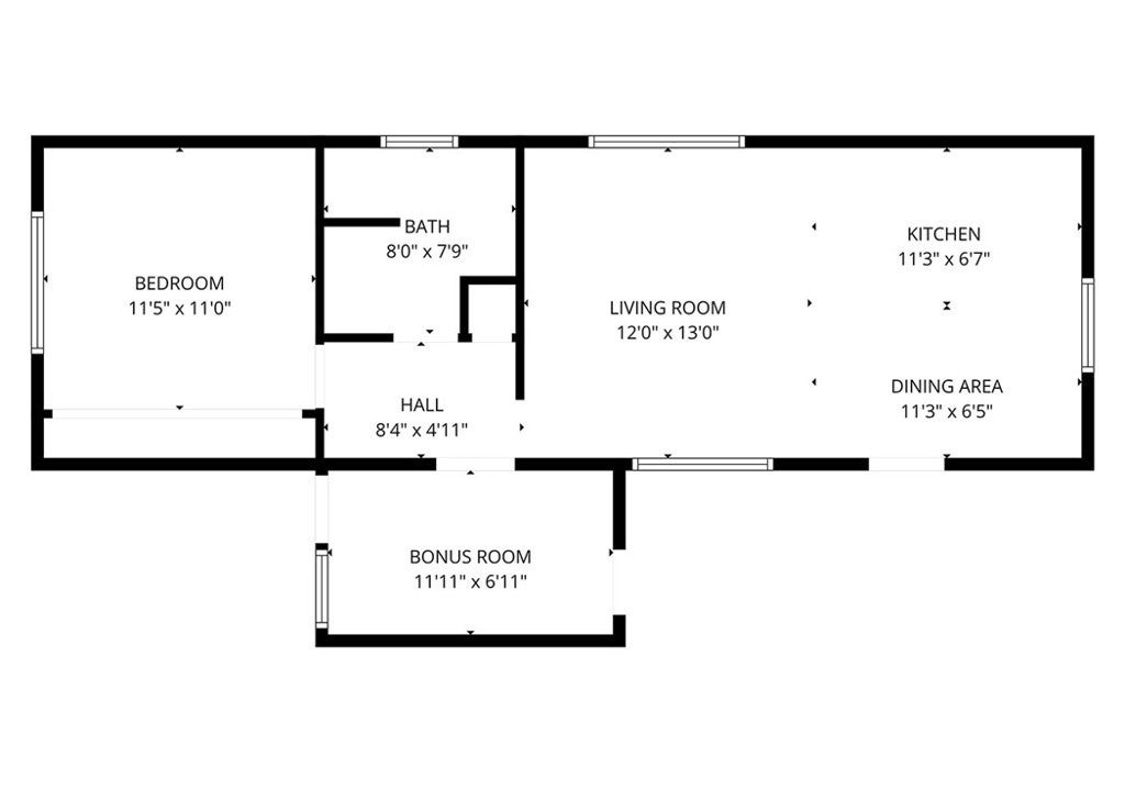
Located in a well maintained 55+ community, this one bedroom manufactured home offers great potential. This open floor plan features a light and bright interior with large windows that bring in plenty of natural light. Two wall A/C units provides cooling throughout, in unit laundry hookups for added convenience. Parking is located directly in front of the home for easy access. Don't miss your chance to own in a community close to shopping, parks and freeways. Land lease is $1,162 / month plus utilities (application approval required), pets are welcome (with some restrictions), 45+ age for secondary resident. Please ask for more info and for the application.

Essential Information

  • MLS® #SR25243877
  • Price$60,000
  • Bedrooms1
  • Bathrooms1.00
  • Full Baths1
  • Square Footage672
  • Acres0.02
  • Year Built1984
  • TypeResidential
  • Sub-TypeManufactured On Land
  • StatusActive Under Contract

Community Information

  • Address300 E. Arbor Street # 12
  • Area699 - Not Defined
  • CityLong Beach
  • CountyLos Angeles
  • Zip Code90805

Amenities

  • ViewNeighborhood
  • PoolNone

Utilities

Cable Available, Electricity Available, Phone Available, Natural Gas Available, Sewer Available

Parking

Assigned, Concrete, Driveway, One Space

Garages

Assigned, Concrete, Driveway, One Space

Interior

  • InteriorCarpet
  • AppliancesGas Oven, Gas Range
  • HeatingWall Furnace
  • CoolingWall/Window Unit(s)
  • FireplacesNone
  • # of Stories1
  • StoriesOne

Interior Features

Breakfast Bar, Built-in Features, Eat-in Kitchen, Open Floorplan, Bedroom on Main Level

Exterior

  • Exterior FeaturesAwning(s)
  • Lot DescriptionZeroToOneUnitAcre
  • WindowsBlinds
  • RoofFlat

School Information

  • DistrictLong Beach Unified

Additional Information

  • Date ListedOctober 16th, 2025
  • Days on Market92

Listing Details

  • AgentMonique Watson

Office

Keller Williams Realty Calabasas

Please provide a valid email address.

Price Change History for 300 E. Arbor Street # 12, Long Beach, (MLS® #SR25243877)

Date Details Change
Status Changed from Active to Active Under Contract
Status Changed from Pending to Active
Status Changed from Active to Pending
Price Reduced from $68,999 to $60,000 $8,999 (13.04%)

Monique Watson, Keller Williams Realty Calabasas.

Based on information from California Regional Multiple Listing Service, Inc. as of January 31st, 2026 at 12:50pm PST. This information is for your personal, non-commercial use and may not be used for any purpose other than to identify prospective properties you may be interested in purchasing. Display of MLS data is usually deemed reliable but is NOT guaranteed accurate by the MLS. Buyers are responsible for verifying the accuracy of all information and should investigate the data themselves or retain appropriate professionals. Information from sources other than the Listing Agent may have been included in the MLS data. Unless otherwise specified in writing, Broker/Agent has not and will not verify any information obtained from other sources. The Broker/Agent providing the information contained herein may or may not have been the Listing and/or Selling Agent.