Connect

Find us on...

Dashboard

Login using...

Shawn Bengtson

Office Broker - DRE 01236964

  • Office 760-805-7199
Questions?

960 W 17th, Santa Ana – $430,000

  • $430k Price
  • .06 Acres
  • 95 DOM
  • $430k Price
  • .06 Acres
  • 95 DOM

960 W 17th

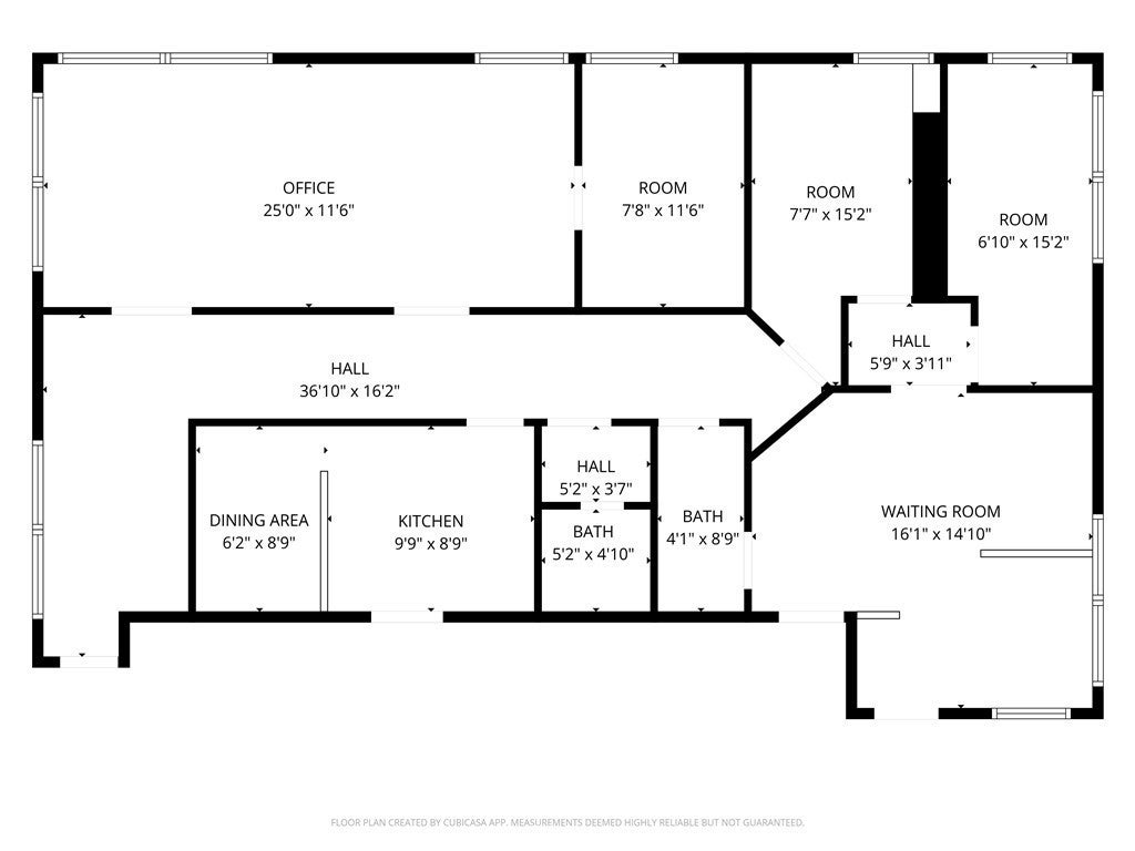
Just remodeled unit!!!! Professional Office/Condo unit 36-F, Excellent Owner/User or Investment property, (1311 sq. ft.) office/condo has a professional layout floor plan consisting of offices and reception area, and ample parking, Low HOA fees, located in Wellington Square a 9-1 building, Professionally Managed Complex, Designed for Professional Firms, Attorneys-Medical Offices, CPAS/Accounting, Financial Services, Architects & Marketing Consultant, Close to Main Mall, O/C Civic Center, Santa Ana City Hall and O/C Superior Court House, Great access to the 5 Freeway. Sellers are selling next door unit 35-E (754 sq. ft) as well, listed separate. Unit F/36 is divided in two, (front and back) each one with their own independent entrance and A/C plus bath, it could be leased to two different tenants and unit E/35 it is separate with their own bath and A/C but both units are internally connected at this point. It would be ideally for an owner to use at least one part of Unit F/36 and lease the other part of the unit. Unit E/35 could be leased separately. Sellers would prefer selling both units together.

Essential Information

  • MLS® #SR25276702
  • Price$430,000
  • Bathrooms0.00
  • Acres0.06
  • Year Built1980
  • TypeCommercial Sale
  • Sub-TypeOffice
  • StatusActive

Community Information

  • Address960 W 17th
  • Area70 - Santa Ana North of First
  • CitySanta Ana
  • CountyOrange
  • Zip Code92706

Interior

  • HeatingCentral
  • CoolingCentral Air
  • # of Stories1

Exterior

  • Lot DescriptionZeroToOneUnitAcre

Additional Information

  • Date ListedDecember 16th, 2025
  • Days on Market95

Listing Details

  • AgentGustavo Friera
  • OfficeSmart Equity Realty Inc
Please provide a valid email address.

Gustavo Friera, Smart Equity Realty Inc.

Based on information from California Regional Multiple Listing Service, Inc. as of March 21st, 2026 at 8:10am PDT. This information is for your personal, non-commercial use and may not be used for any purpose other than to identify prospective properties you may be interested in purchasing. Display of MLS data is usually deemed reliable but is NOT guaranteed accurate by the MLS. Buyers are responsible for verifying the accuracy of all information and should investigate the data themselves or retain appropriate professionals. Information from sources other than the Listing Agent may have been included in the MLS data. Unless otherwise specified in writing, Broker/Agent has not and will not verify any information obtained from other sources. The Broker/Agent providing the information contained herein may or may not have been the Listing and/or Selling Agent.