Connect

Find us on...

Dashboard

Login using...

Shawn Bengtson

Office Broker - DRE 01236964

  • Office 760-805-7199
Questions?

28274 San Martinez Grande Canyon Road, Castaic – $565,000

  • 3 Beds
  • 3 Baths
  • 2,400 Sqft
  • 5.04 Acres
  • 3 Beds
  • 3 Baths
  • 2,400 Sqft
  • 5.04 Acres

28274 San Martinez Grande Canyon Road

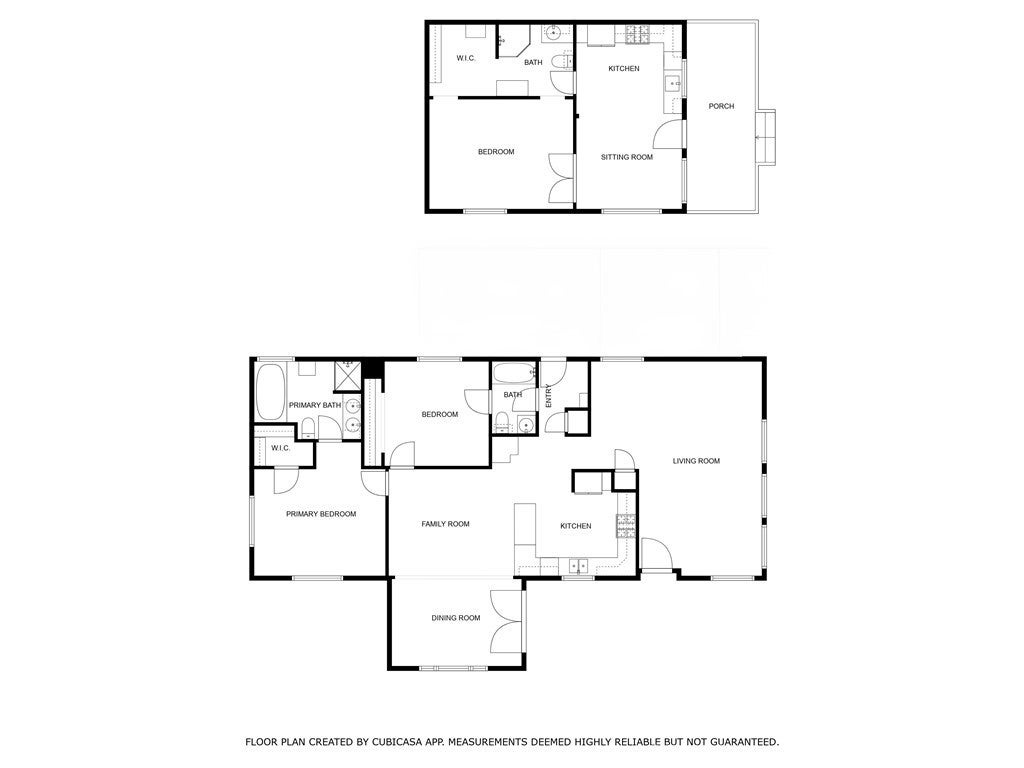
This unique 5.04-acre property, just 15 minutes from Santa Clarita/Castaic, features two distinct homes. The main residence, remodeled in 2007, offers 1,560 sq. ft. of modern living space with 2 bedrooms and 2 bathrooms. It boasts a stylish kitchen with built-in seating, an expansive gaming/TV room, a day room, and a spa-like master bath complete with a Roman tub and dual sinks. The second home, built in 2010, provides 650 sq. ft. with 1 bedroom and a 0.75 bathroom, featuring a spacious layout and French doors leading to the bedroom. The property is zoned A-2-2, making it ideal for animal care, horses, cattle, or agriculture. Additional amenities include ample parking for RVs and boats, an 8’x40’ waterproof cargo storage container, a new solar powered well with purification system installed in 2024, an open-air hot tub, an oversized gazebo with stunning views, and a septic system. BRAND NEW complete septic system and leach field. Owner may carry.

Essential Information

  • MLS® #SR25278567
  • Price$565,000
  • Bedrooms3
  • Bathrooms3.00
  • Full Baths2
  • Square Footage2,400
  • Acres5.04
  • Year Built1976
  • TypeResidential
  • Sub-TypeManufactured On Land
  • StatusActive

Community Information

  • AreaCJCT - Castaic Junction
  • CityCastaic
  • CountyLos Angeles
  • Zip Code91384

Address

28274 San Martinez Grande Canyon Road

Subdivision

Mobile/Modular/Manufactured (VVER) (MVVER)

Amenities

  • UtilitiesOverhead Utilities
  • Parking Spaces8
  • ViewHills, Panoramic, Canyon
  • PoolNone

Parking

Attached Carport, RV Access/Parking, Driveway Up Slope From Street, Gravel, Oversized, RV Hook-Ups, Unpaved

Garages

Attached Carport, RV Access/Parking, Driveway Up Slope From Street, Gravel, Oversized, RV Hook-Ups, Unpaved

Interior

  • InteriorLaminate, Wood
  • HeatingElectric, Space Heater
  • CoolingElectric, Wall/Window Unit(s)
  • FireplacesNone
  • # of Stories1
  • StoriesOne

Interior Features

Breakfast Bar, Balcony, Separate/Formal Dining Room, Eat-in Kitchen, Open Floorplan, Partially Furnished, Recessed Lighting, Wired for Data, Bedroom on Main Level, Main Level Primary, Walk-In Closet(s), Crown Molding, In-Law Floorplan, Laminate Counters, Solid Surface Counters

Appliances

Built-In Range, Dishwasher, ENERGY STAR Qualified Appliances, Freezer, Gas Range, Ice Maker, Refrigerator, Range Hood, Self Cleaning Oven, Tankless Water Heater, Water To Refrigerator, Washer, Propane Range, Water Purifier

Exterior

  • Exterior FeaturesAwning(s), Kennel
  • RoofShingle, Metal

Exterior

Drywall, Wood Siding, Aluminum Siding, Vinyl Siding

Lot Description

Desert Back, Front Yard, Garden, Horse Property, Rectangular Lot, Value In Land, Agricultural, Lot Over 40000 Sqft, Ranch, Rocks, Rolling Slope, Secluded, Sloped Down, Sloped Up, Sprinklers None

Windows

Double Pane Windows, ENERGY STAR Qualified Windows, Bay Window(s)

Construction

Drywall, Wood Siding, Aluminum Siding, Vinyl Siding

School Information

  • DistrictOther

Additional Information

  • Date ListedDecember 19th, 2025
  • Days on Market5
  • ZoningLCA22*

Listing Details

  • AgentSimon Mills
  • OfficeMills Realty of California
Please provide a valid email address.

Simon Mills, Mills Realty of California.

Based on information from California Regional Multiple Listing Service, Inc. as of December 24th, 2025 at 8:26pm PST. This information is for your personal, non-commercial use and may not be used for any purpose other than to identify prospective properties you may be interested in purchasing. Display of MLS data is usually deemed reliable but is NOT guaranteed accurate by the MLS. Buyers are responsible for verifying the accuracy of all information and should investigate the data themselves or retain appropriate professionals. Information from sources other than the Listing Agent may have been included in the MLS data. Unless otherwise specified in writing, Broker/Agent has not and will not verify any information obtained from other sources. The Broker/Agent providing the information contained herein may or may not have been the Listing and/or Selling Agent.