Connect

Find us on...

Dashboard

Login using...

Shawn Bengtson

Office Broker - DRE 01236964

  • Office 760-805-7199
Questions?

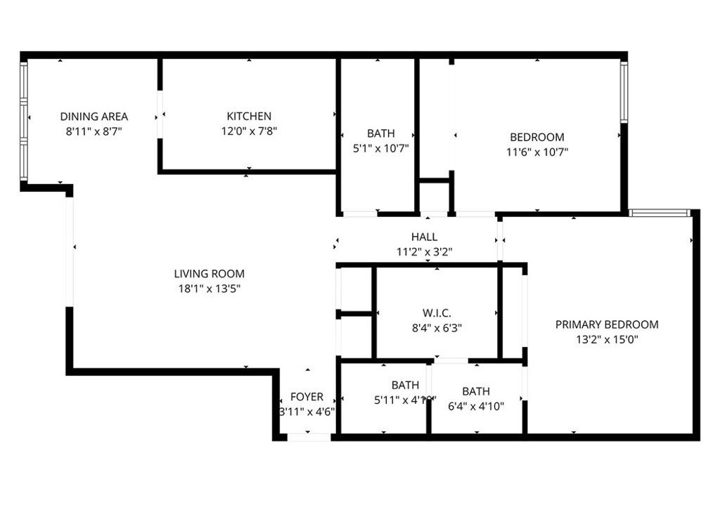
4622 Park Granada # 80, Calabasas – $3,500

  • 2 Beds
  • 2 Baths
  • 1,054 Sqft
  • 12.1 Acres
  • 2 Beds
  • 2 Baths
  • 1,054 Sqft
  • 12.1 Acres

4622 Park Granada # 80

Welcome to this bright and spacious 2-bedroom, 2-bathroom residence ideally located in the heart of Central Calabasas. Situated directly across the street from The Commons at Calabasas and next to the lake, this home offers an exceptional lifestyle and prime location. The residence features an updated kitchen, hardwood floors in the living room and kitchen, and new carpet in the bedrooms, creating a warm and inviting living space. Washer, dryer, microwave, and refrigerator are included in the unit for added convenience. Water is included in the rent. Enjoy abundant natural light, an open and airy feel, and the privacy of an upper-level unit. Community HOA amenities include a pool, gym, clubhouse, and lake access. Located within the highly regarded Las Virgenes Unified School District, known for its award-winning schools. Just moments from shopping, dining, and entertainment, this is Calabasas living at its best.

Essential Information

  • MLS® #SR26014477
  • Price$3,500
  • Bedrooms2
  • Bathrooms2.00
  • Full Baths2
  • Square Footage1,054
  • Acres12.10
  • Year Built1972
  • TypeResidential Lease
  • Sub-TypeCondominium
  • StatusActive

Community Information

  • Address4622 Park Granada # 80
  • AreaCLB - Calabasas
  • CityCalabasas
  • CountyLos Angeles
  • Zip Code91302

Amenities

  • Parking Spaces2
  • ParkingAssigned, Detached Carport
  • GaragesAssigned, Detached Carport
  • ViewNeighborhood
  • Has PoolYes
  • PoolCommunity, Association

Amenities

Clubhouse, Fitness Center, Pool, Spa/Hot Tub

Utilities

Water Connected, Association Dues, Gardener, Water

Interior

  • InteriorCarpet, Wood
  • HeatingCentral
  • CoolingCentral Air
  • FireplacesNone
  • # of Stories1
  • StoriesOne

Interior Features

Balcony, Eat-in Kitchen, All Bedrooms Down

Appliances

Dishwasher, Microwave, Refrigerator

Exterior

  • Lot DescriptionThirtySixToFortyUnitsAcre
  • WindowsBlinds

School Information

  • DistrictLas Virgenes
  • ElementaryBay Laurel
  • MiddleA.C. Stelle
  • HighCalabasas

Additional Information

  • Date ListedJanuary 25th, 2026
  • Days on Market11

Listing Details

  • AgentRachel Tabak
  • OfficeKeller Williams Luxury
Please provide a valid email address.

Price Change History for 4622 Park Granada # 80, Calabasas, (MLS® #SR26014477)

Date Details Change
Price Reduced from $3,600 to $3,500 $100 (2.78%)

Rachel Tabak, Keller Williams Luxury.

Based on information from California Regional Multiple Listing Service, Inc. as of February 7th, 2026 at 8:21pm PST. This information is for your personal, non-commercial use and may not be used for any purpose other than to identify prospective properties you may be interested in purchasing. Display of MLS data is usually deemed reliable but is NOT guaranteed accurate by the MLS. Buyers are responsible for verifying the accuracy of all information and should investigate the data themselves or retain appropriate professionals. Information from sources other than the Listing Agent may have been included in the MLS data. Unless otherwise specified in writing, Broker/Agent has not and will not verify any information obtained from other sources. The Broker/Agent providing the information contained herein may or may not have been the Listing and/or Selling Agent.