Connect

Find us on...

Dashboard

Login using...

Shawn Bengtson

Office Broker - DRE 01236964

  • Office 760-805-7199
Questions?

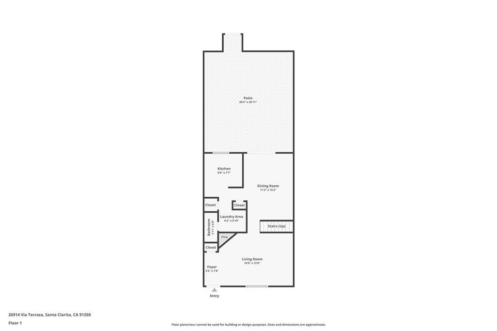
26914 Via Terraza, Saugus – $609,000

  • 3 Beds
  • 3 Baths
  • 1,285 Sqft
  • 4.9 Acres
  • 3 Beds
  • 3 Baths
  • 1,285 Sqft
  • 4.9 Acres

26914 Via Terraza

Welcome home to this bright and move in ready 3 bedroom, 2.5 bathroom townhouse that's been beautifully renovated and thoughtfully updated throughout. The modern kitchen shines with updated cabinetry, quartz countertops, stylish backsplash, newer appliances, and recessed lighting making it perfect for everyday living and entertaining. Updated bathrooms and flooring add a fresh and contemporary feel. Enjoy your own attached back patio, ideal for relaxing or hosting guests. This desirable community features HOA amenities including a pool and playground. No Mello Roos. Conveniently located close to shops, award-winning schools, restaurants, and everyday amenities. This turnkey home checks all the boxes!

Essential Information

  • MLS® #SR26023024
  • Price$609,000
  • Bedrooms3
  • Bathrooms3.00
  • Full Baths2
  • Half Baths1
  • Square Footage1,285
  • Acres4.90
  • Year Built1976
  • TypeResidential
  • Sub-TypeTownhouse
  • StatusActive

Community Information

  • Address26914 Via Terraza
  • AreaBOUQ - Bouquet Canyon
  • SubdivisionThe Terrace (TTRC)
  • CitySaugus
  • CountyLos Angeles
  • Zip Code91350

Amenities

  • AmenitiesPlayground, Pool
  • UtilitiesNone
  • Parking Spaces2
  • ParkingCarport, Garage
  • # of Garages1
  • GaragesCarport, Garage
  • ViewNone
  • Has PoolYes
  • PoolCommunity, Association

Interior

  • InteriorVinyl
  • HeatingCentral, Fireplace(s)
  • CoolingCentral Air
  • FireplaceYes
  • FireplacesLiving Room
  • # of Stories2
  • StoriesTwo

Interior Features

Breakfast Bar, Ceiling Fan(s), Quartz Counters, Recessed Lighting, All Bedrooms Up, Walk-In Closet(s)

Appliances

Dishwasher, Free-Standing Range, Gas Water Heater, Microwave, Refrigerator, Dryer, Washer

School Information

  • DistrictWilliam S. Hart Union
  • ElementaryFoster
  • MiddleArroyo Seco
  • HighSaugus

Additional Information

  • Date ListedFebruary 5th, 2026
  • Days on Market41
  • HOA Fees385
  • HOA Fees Freq.Monthly

Listing Details

  • AgentRosalind Heaney
  • OfficeSentry Residential
Please provide a valid email address.

Price Change History for 26914 Via Terraza, Saugus, (MLS® #SR26023024)

Date Details Change
Price Reduced from $615,000 to $609,000 $6,000 (0.98%)

Rosalind Heaney, Sentry Residential.

Based on information from California Regional Multiple Listing Service, Inc. as of March 18th, 2026 at 8:41am PDT. This information is for your personal, non-commercial use and may not be used for any purpose other than to identify prospective properties you may be interested in purchasing. Display of MLS data is usually deemed reliable but is NOT guaranteed accurate by the MLS. Buyers are responsible for verifying the accuracy of all information and should investigate the data themselves or retain appropriate professionals. Information from sources other than the Listing Agent may have been included in the MLS data. Unless otherwise specified in writing, Broker/Agent has not and will not verify any information obtained from other sources. The Broker/Agent providing the information contained herein may or may not have been the Listing and/or Selling Agent.