Connect

Find us on...

Dashboard

Login using...

Shawn Bengtson

Office Broker - DRE 01236964

  • Office 760-805-7199
Questions?

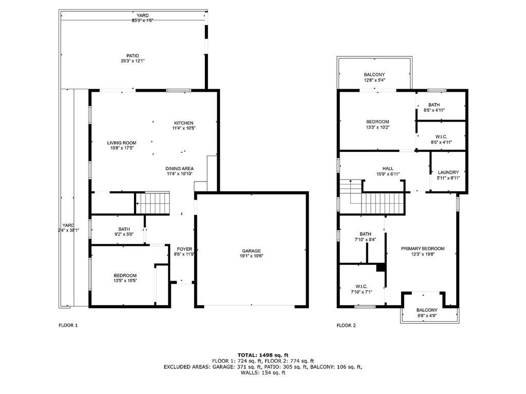
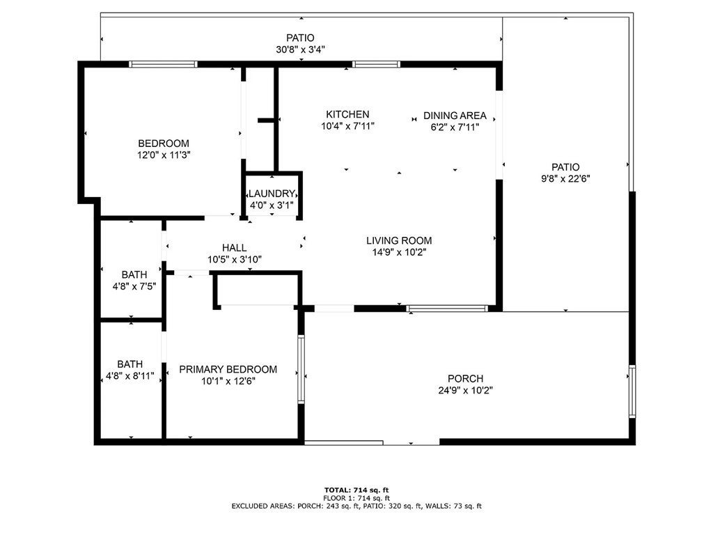
8034 036,038 Fair Avenue, Sun Valley – $2,400,000

  • 5 Beds
  • 5 Baths
  • .17 Acres
  • 76 DOM
  • 5 Beds
  • 5 Baths
  • .17 Acres
  • 76 DOM

8034 036,038 Fair Avenue

ATTENTION INVESTORS!!New Construction just completed DECEMBER 2025 with 3 separate building including of :TWO SINGLE FAMILY HOMES+ONE ADU, as follows: 8034 FAIR AVE , two story building with 3 Bed,3 Bath Single Family Home |8036 FAIR AVE , one story building with; 2 Beds ,2 Baths ADU| 8038 FAIR AVE, two story building with ; 3bed, 3 bath Single Family home. This 3 units single family home just built with top quality and modern specifications . Property Highlights: - Equipped with solar panels for lower utility costs - Bright & Open Floor Plan with large living and dining areas - Beautiful Kitchen with ample cabinetry, quartz countertops, and stainless-steel appliances - Three Generously Sized Bedrooms with great closet space - Three Full Bathrooms, including a private suite in the primary bedroom - Central A/C & Heating for year-round comfort - Washer/Dryer included on 2nd floor for in-home laundry - Private Backyard ideal for relaxing, entertaining, or gardening - Driveway Parking + 2 Garage Parking for each single family home and additional parking for the ADU: Located on a quiet residential street, yet just minutes from: Major freeways (5, 170, 210) for easy commuting Burbank, North Hollywood, and the San Fernando Valley Local parks, schools, grocery stores, and shopping centers

Essential Information

  • MLS® #SR26025036
  • Price$2,400,000
  • Bedrooms5
  • Bathrooms5.00
  • Acres0.17
  • Year Built2025
  • TypeResidential Income
  • Sub-TypeSingle Family Residence
  • StatusActive

Community Information

  • Address8034 036,038 Fair Avenue
  • AreaSUNV - Sun Valley
  • CitySun Valley
  • CountyLos Angeles
  • Zip Code91352

Amenities

  • Parking Spaces4
  • ParkingAssigned
  • # of Garages4
  • GaragesAssigned
  • ViewNone
  • PoolNone

Utilities

Electricity Connected, Sewer Connected, Water Connected

Interior

  • InteriorLaminate
  • HeatingCentral
  • CoolingCentral Air
  • FireplacesNone
  • # of Stories2

Appliances

Dishwasher, Electric Oven, Microwave, Refrigerator, Water Heater, Dryer, Washer, Free-Standing Range

Exterior

  • Lot DescriptionLevel
  • FoundationSlab

Additional Information

  • Date ListedFebruary 3rd, 2026
  • Days on Market76

Listing Details

  • AgentAlfred Tavari
  • OfficeAllstate Realty
Please provide a valid email address.

Alfred Tavari, Allstate Realty.

Based on information from California Regional Multiple Listing Service, Inc. as of April 20th, 2026 at 2:52pm PDT. This information is for your personal, non-commercial use and may not be used for any purpose other than to identify prospective properties you may be interested in purchasing. Display of MLS data is usually deemed reliable but is NOT guaranteed accurate by the MLS. Buyers are responsible for verifying the accuracy of all information and should investigate the data themselves or retain appropriate professionals. Information from sources other than the Listing Agent may have been included in the MLS data. Unless otherwise specified in writing, Broker/Agent has not and will not verify any information obtained from other sources. The Broker/Agent providing the information contained herein may or may not have been the Listing and/or Selling Agent.