Connect

Find us on...

Dashboard

Login using...

Shawn Bengtson

Office Broker - DRE 01236964

  • Office 760-805-7199
Questions?

1791 Sitka, Simi Valley – $870,243

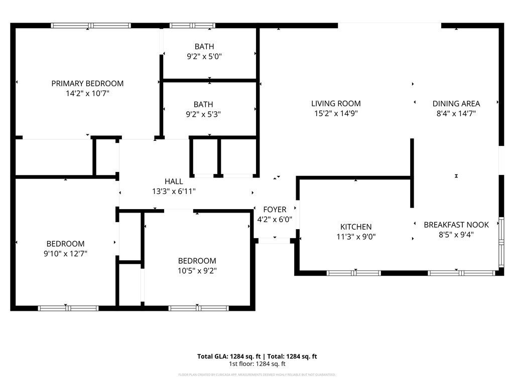
  • 3 Beds
  • 2 Baths
  • 1,233 Sqft
  • .19 Acres
  • 3 Beds
  • 2 Baths
  • 1,233 Sqft
  • .19 Acres

1791 Sitka

Welcome to this beautifully renovated 3-bedroom, 2-bath single-family home nestled in an established neighborhood of Simi Valley. Thoughtfully updated from top to bottom, this turnkey residence blends modern finishes with warm, inviting comfort—perfect for first-time buyers and growing families. Step inside to discover all-new flooring throughout and a bright, open living space designed for everyday living and entertaining. The fully remodeled kitchen shines with contemporary updates, creating a stylish and functional heart of the home. Both bathrooms have been tastefully renovated with clean, modern touches that elevate the space. Enjoy peace of mind with major upgrades already completed, including a new HVAC system, updated electrical panel, and new fencing for added privacy and curb appeal. Move-in ready and designed for comfort, this charming home offers the perfect blend of cozy living and modern convenience in one of Simi Valley’s most established communities.

Essential Information

  • MLS® #SR26036793
  • Price$870,243
  • Bedrooms3
  • Bathrooms2.00
  • Full Baths2
  • Square Footage1,233
  • Acres0.19
  • Year Built1961
  • TypeResidential
  • Sub-TypeSingle Family Residence
  • StatusActive

Community Information

  • Address1791 Sitka
  • AreaSVE - East Simi
  • CitySimi Valley
  • CountyVentura
  • Zip Code93063

Amenities

  • Parking Spaces2
  • ParkingGarage Faces Front
  • # of Garages2
  • GaragesGarage Faces Front
  • ViewNone
  • PoolNone

Interior

  • HeatingForced Air
  • CoolingCentral Air
  • FireplacesNone
  • # of Stories1
  • StoriesOne

Interior Features

All Bedrooms Down, Bedroom on Main Level, Main Level Primary

Exterior

  • Lot DescriptionZeroToOneUnitAcre, Front Yard

School Information

  • DistrictSimi Valley Unified

Additional Information

  • Date ListedFebruary 18th, 2026
  • Days on Market19

Listing Details

  • AgentMorgan Slominski
  • OfficeHouse-A-Home
Please provide a valid email address.

Morgan Slominski, House-A-Home.

Based on information from California Regional Multiple Listing Service, Inc. as of March 17th, 2026 at 11:12am PDT. This information is for your personal, non-commercial use and may not be used for any purpose other than to identify prospective properties you may be interested in purchasing. Display of MLS data is usually deemed reliable but is NOT guaranteed accurate by the MLS. Buyers are responsible for verifying the accuracy of all information and should investigate the data themselves or retain appropriate professionals. Information from sources other than the Listing Agent may have been included in the MLS data. Unless otherwise specified in writing, Broker/Agent has not and will not verify any information obtained from other sources. The Broker/Agent providing the information contained herein may or may not have been the Listing and/or Selling Agent.