Connect

Find us on...

Dashboard

Login using...

Shawn Bengtson

Office Broker - DRE 01236964

  • Office 760-805-7199
Questions?

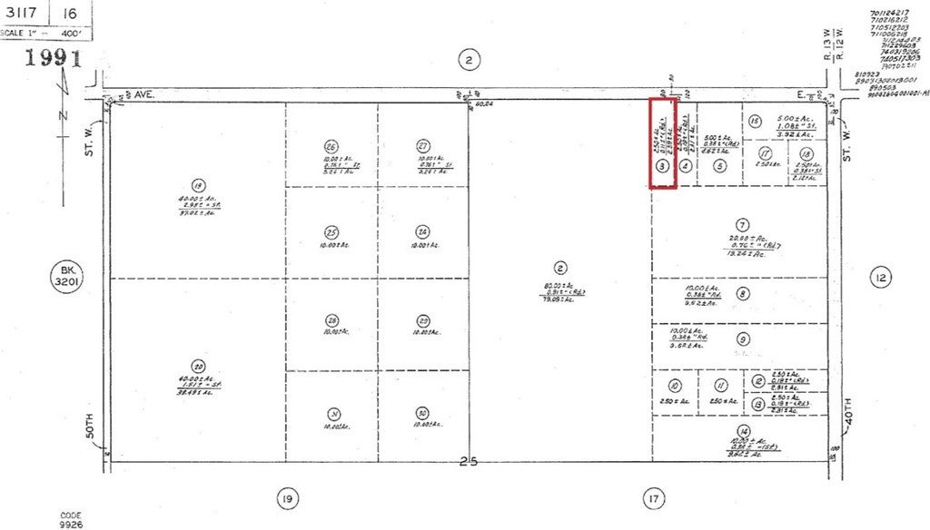
Avenue E, Lancaster – $24,000

  • $24k Price
  • 2.39 Acres
  • 4 DOM
  • $24k Price
  • 2.39 Acres
  • 4 DOM

Avenue E

Zoned Light Industrial and in Fox Field Master Plan. Investor Opportunity--Do Not Delay, Start Investing in Land! This well priced 2.39 acre parcel is in the City of Lancaster and is already zoned Light Industrial. This parcel offers legal access and road frontage along Avenue E. Electric power poles located just east of the property along 40th west and is adjacent to an 80ac parcel. Future development site is within the City of Lancaster's Fox Field Industrial Corridor Specific Plan, North of the General William J. Fox Airfield. The Fox Field Industrial Corridor is a premier 8,200-acre master-planned area hosting major distribution centers, aerospace firms, and manufacturing facilities. Large scale developments planned in the immediate vicinity of this parcel include a new BYD bus factory and the 1.2 million sqft ''Northpoint'' warehouse developments. The Fox airfield supports several major operations, including a U. S. Forest Service fixed-wing airtanker and helicopter base, making it a key regional hub for aerial firefighting and suppression efforts during fire season. The surrounding area features a mix of industrial uses and established residential housing, suggesting potential versatility in future use (buyer to verify). Conveniently located near Highway 138 and the 14 Freeway, the property offers easy access to services, and employment centers of both Lancaster and Palmdale.

Essential Information

  • MLS® #SR26046449
  • Price$24,000
  • Bathrooms0.00
  • Acres2.39
  • TypeLand
  • StatusActive

Community Information

  • AddressAvenue E
  • AreaLAC - Lancaster
  • CityLancaster
  • CountyLos Angeles
  • Zip Code93536

Amenities

  • UtilitiesWater Not Available
  • ViewMountain(s)

Exterior

  • Lot DescriptionRectangular Lot

Additional Information

  • Date ListedMarch 2nd, 2026
  • Days on Market4
  • ZoningLRSP

Listing Details

  • AgentPriyam Rajapaksa
  • OfficeRe/Max All-Pro
Please provide a valid email address.

Priyam Rajapaksa, Re/Max All-Pro.

Based on information from California Regional Multiple Listing Service, Inc. as of March 7th, 2026 at 3:20pm PST. This information is for your personal, non-commercial use and may not be used for any purpose other than to identify prospective properties you may be interested in purchasing. Display of MLS data is usually deemed reliable but is NOT guaranteed accurate by the MLS. Buyers are responsible for verifying the accuracy of all information and should investigate the data themselves or retain appropriate professionals. Information from sources other than the Listing Agent may have been included in the MLS data. Unless otherwise specified in writing, Broker/Agent has not and will not verify any information obtained from other sources. The Broker/Agent providing the information contained herein may or may not have been the Listing and/or Selling Agent.