Connect

Find us on...

Dashboard

Login using...

Shawn Bengtson

Office Broker - DRE 01236964

  • Office 760-805-7199
Questions?

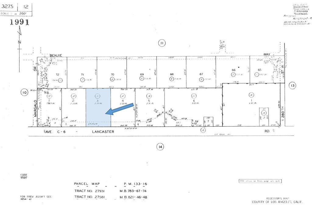
Lancaster Rd/hwy 138 Vic 283rd W, Fairmont – $48,000

  • $48k Price
  • 2.2 Acres
  • 11 DOM
  • $48k Price
  • 2.2 Acres
  • 11 DOM

Lancaster Rd/hwy 138 Vic 283rd W

Build your dream home on this prime 2.2-acre Fairmont parcel. Featuring paved street access on Lancaster Road, this property offers scenic rural views with water and electricity at the street. Enjoy peaceful, country living just 10 miles from the I-5. Ready for your plans! Adjoining parcel is also available, listed separately. *Buyer to make their own independent investigations regarding Zoning and General Plan Designations, Environmental and Hazard Zones, Access and Development costs, Availability and Costs of Utilities.

Essential Information

  • MLS® #SR26046824
  • Price$48,000
  • Bathrooms0.00
  • Acres2.20
  • TypeLand
  • StatusActive

Community Information

  • AreaFAIR - Fairmont
  • CityFairmont
  • CountyLos Angeles
  • Zip Code93536

Address

Lancaster Rd/hwy 138 Vic 283rd W

Amenities

  • ViewNeighborhood

Utilities

Electricity Available, Phone Available, Water Available, Sewer Not Available

Exterior

Lot Description

Level, Rectangular Lot, Agricultural

Additional Information

  • Date ListedMarch 3rd, 2026
  • Days on Market11
  • ZoningA-1-2

Listing Details

  • AgentKarmen Mastin
  • OfficeBig Valley Real Estate
Please provide a valid email address.

Karmen Mastin, Big Valley Real Estate.

Based on information from California Regional Multiple Listing Service, Inc. as of March 14th, 2026 at 12:18am PDT. This information is for your personal, non-commercial use and may not be used for any purpose other than to identify prospective properties you may be interested in purchasing. Display of MLS data is usually deemed reliable but is NOT guaranteed accurate by the MLS. Buyers are responsible for verifying the accuracy of all information and should investigate the data themselves or retain appropriate professionals. Information from sources other than the Listing Agent may have been included in the MLS data. Unless otherwise specified in writing, Broker/Agent has not and will not verify any information obtained from other sources. The Broker/Agent providing the information contained herein may or may not have been the Listing and/or Selling Agent.