Connect

Find us on...

Dashboard

Login using...

Shawn Bengtson

Office Broker - DRE 01236964

  • Office 760-805-7199
Questions?

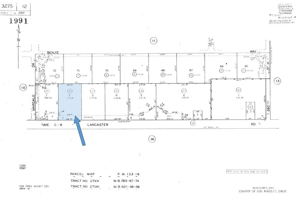
Lancaster Rd/hwy 138 Vic 284th St W, Fairmont – $53,000

  • $53k Price
  • 2.2 Acres
  • 13 DOM
  • $53k Price
  • 2.2 Acres
  • 13 DOM

Lancaster Rd/hwy 138 Vic 284th St W

Builder Ready! Don't miss this beautiful 2.2-acre parcel featuring excellent paved street frontage on Lancaster Rd. With a water meter already installed and electricity available at the street, this level lot is primed for construction. Located in a neighborhood of attractive homes, this property offers the perfect blend of rural tranquility and accessibility, just 10 miles from I-5. Adjoining parcel is also available, listed separately. *Buyer to make their own independent investigations regarding Zoning and General Plan Designations, Environmental and Hazard Zones, Access and Development costs, Availability and Costs of Utilities.

Essential Information

  • MLS® #SR26046852
  • Price$53,000
  • Bathrooms0.00
  • Acres2.20
  • TypeLand
  • StatusActive

Community Information

  • AreaFAIR - Fairmont
  • CityFairmont
  • CountyLos Angeles
  • Zip Code93536

Address

Lancaster Rd/hwy 138 Vic 284th St W

Amenities

  • ViewNeighborhood

Utilities

Electricity Available, Phone Available, Water Available, Sewer Not Available

Exterior

  • Lot DescriptionLevel, Rectangular Lot

Additional Information

  • Date ListedMarch 3rd, 2026
  • Days on Market13
  • ZoningA-1-2

Listing Details

  • AgentKarmen Mastin
  • OfficeBig Valley Real Estate
Please provide a valid email address.

Karmen Mastin, Big Valley Real Estate.

Based on information from California Regional Multiple Listing Service, Inc. as of March 16th, 2026 at 3:46pm PDT. This information is for your personal, non-commercial use and may not be used for any purpose other than to identify prospective properties you may be interested in purchasing. Display of MLS data is usually deemed reliable but is NOT guaranteed accurate by the MLS. Buyers are responsible for verifying the accuracy of all information and should investigate the data themselves or retain appropriate professionals. Information from sources other than the Listing Agent may have been included in the MLS data. Unless otherwise specified in writing, Broker/Agent has not and will not verify any information obtained from other sources. The Broker/Agent providing the information contained herein may or may not have been the Listing and/or Selling Agent.