Connect

Find us on...

Dashboard

Login using...

Shawn Bengtson

Office Broker - DRE 01236964

  • Office 760-805-7199
Questions?

42410 Winchester, Temecula – $0

  • $0 Price
  • 1 Acres
  • 29 DOM
  • $0 Price
  • 1 Acres
  • 29 DOM

42410 Winchester

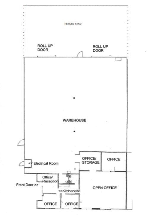
Winchester Fronted Industrial Space with Gated Yard PROPERTY FEATURES: * Building +/- 9,490 SQFT, single building, fenced yard +/- 4,500 SQFT, concrete tilt up construction, 19 parking spaces with additional open spaces, 400 amp, 208/128 volt, 3-phase, Winchester frontage * Warehouse Spaces – two 10’ x 12’ ground level loading doors, two man doors, restroom, 17’ minimum clear height, skylights throughout warehouse, sprinklers * Office Spaces – current configuration +/- 2300 SQFT, consists of reception, kitchenette, restroom, 3 private offices/meeting room/showroom, and a large open office

Essential Information

  • MLS® #SW25242186
  • Bathrooms0.00
  • Acres1.00
  • Year Built1998
  • TypeCommercial Lease
  • Sub-TypeIndustrial
  • StatusActive

Community Information

  • Address42410 Winchester
  • CityTemecula
  • CountyRiverside
  • Zip Code92590

Area

SRCAR - Southwest Riverside County

Interior

  • HeatingCentral
  • # of Stories1

Exterior

  • ExteriorConcrete
  • Lot DescriptionZeroToOneUnitAcre
  • ConstructionConcrete

Additional Information

  • Date ListedOctober 15th, 2025
  • Days on Market29

Listing Details

  • AgentLouisa Theos
  • OfficeHarvest Realty
Please provide a valid email address.

Louisa Theos, Harvest Realty.

Based on information from California Regional Multiple Listing Service, Inc. as of November 15th, 2025 at 10:30am PST. This information is for your personal, non-commercial use and may not be used for any purpose other than to identify prospective properties you may be interested in purchasing. Display of MLS data is usually deemed reliable but is NOT guaranteed accurate by the MLS. Buyers are responsible for verifying the accuracy of all information and should investigate the data themselves or retain appropriate professionals. Information from sources other than the Listing Agent may have been included in the MLS data. Unless otherwise specified in writing, Broker/Agent has not and will not verify any information obtained from other sources. The Broker/Agent providing the information contained herein may or may not have been the Listing and/or Selling Agent.