Connect

Find us on...

Dashboard

Login using...

Shawn Bengtson

Office Broker - DRE 01236964

  • Office 760-805-7199
Questions?

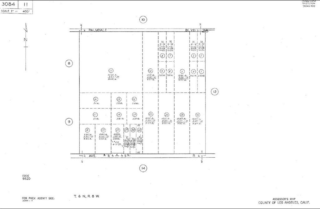
Cor Palmdale Pvd 220 E, Palmdale – $149,900

  • $150k Price
  • 39.94 Acres
  • 25 DOM
  • $150k Price
  • 39.94 Acres
  • 25 DOM

Cor Palmdale Pvd 220 E

**FINANCING MAY BE AVAILABLE** — Incredible opportunity to own **39.92 acres** of rural and agricultural vacant land located at **0 220th St, Palmdale**, also known as **COR PALMDALE PVD 220 E**, **APN: 3084-011-011**. Zoned **LCA22**, this versatile designation allows for a wide range of uses including a **custom single-family residence**, ranch or homestead, farming, crops, orchards, nurseries, equestrian facilities, livestock, barns, workshops, and other accessory structures (buyer to verify all uses with LA County). This expansive parcel offers wide-open space, privacy, and strong long-term investment potential in a growing High Desert market. The property currently has **no active utilities connected**, but **power, water, and other utilities are nearby**, making future development feasible. With proper approvals, the property **may qualify for a USDA construction or construction-to-permanent loan** when paired with an approved build (buyer to verify eligibility). Ideal for buyers looking to build now, hold for future development, or create a private agricultural or rural estate—this is premium land with endless possibilities.

Essential Information

  • MLS® #SW26009916
  • Price$149,900
  • Bathrooms0.00
  • Acres39.94
  • TypeLand
  • StatusActive

Community Information

  • AddressCor Palmdale Pvd 220 E
  • AreaPLM - Palmdale
  • CityPalmdale
  • CountyLos Angeles
  • Zip Code93591

Amenities

  • UtilitiesWater Not Available
  • ViewDesert

Exterior

  • Lot DescriptionThirtySixToFortyUnitsAcre

Additional Information

  • Date ListedJanuary 14th, 2026
  • Days on Market25
  • ZoningLCA22*

Listing Details

  • AgentGilberto Garcia
  • OfficeRise Realty
Please provide a valid email address.

Gilberto Garcia, Rise Realty.

Based on information from California Regional Multiple Listing Service, Inc. as of February 8th, 2026 at 4:55am PST. This information is for your personal, non-commercial use and may not be used for any purpose other than to identify prospective properties you may be interested in purchasing. Display of MLS data is usually deemed reliable but is NOT guaranteed accurate by the MLS. Buyers are responsible for verifying the accuracy of all information and should investigate the data themselves or retain appropriate professionals. Information from sources other than the Listing Agent may have been included in the MLS data. Unless otherwise specified in writing, Broker/Agent has not and will not verify any information obtained from other sources. The Broker/Agent providing the information contained herein may or may not have been the Listing and/or Selling Agent.