Connect

Find us on...

Dashboard

Login using...

Shawn Bengtson

Office Broker - DRE 01236964

  • Office 760-805-7199
Questions?

1237 Huckleberry, San Jacinto – $595,000

  • 7 Beds
  • 3 Baths
  • 3,391 Sqft
  • .2 Acres
  • 7 Beds
  • 3 Baths
  • 3,391 Sqft
  • .2 Acres

1237 Huckleberry

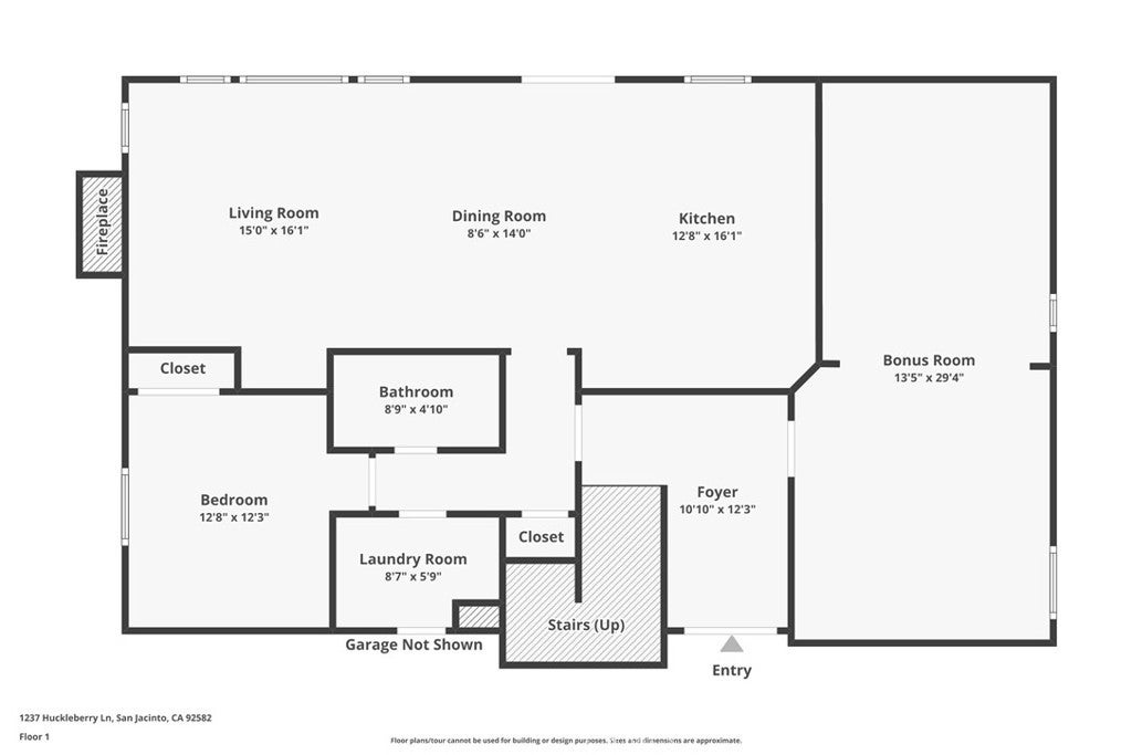
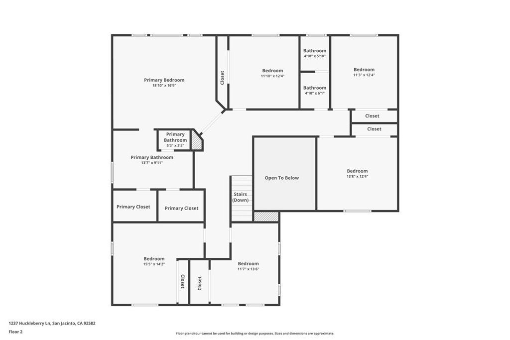
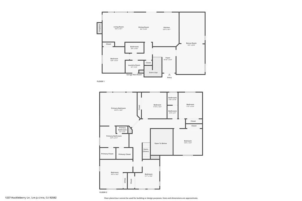
Welcome home to this expansive two-story residence located in the growing community of San Jacinto. Offering 7 bedrooms, 3 bathrooms, and 3,391 sq ft of living space on an 8,712 sq ft lot, this versatile property also features solar for energy efficiency and a layout that allows for multiple living options. Upon entry, the foyer welcomes you with a staircase leading to the second floor. To the right, a spacious bonus room offers the perfect opportunity to create a private living area, home office, or separate section of the home. Across the hallway, the bright kitchen flows into the dining area and living room, creating an open-concept space ideal for gatherings. A sliding glass door leads to the covered rear porch and spacious backyard. The main level includes a bedroom, full bathroom, and a separate indoor laundry room—providing flexibility for extended family or a private living setup. Upstairs, the primary suite features its own bathroom and closet, while three bedrooms across the hallway share a full bathroom. Two additional bedrooms are located on the opposite side of the hall, each with its own closet. This thoughtfully designed floor plan allows you to live comfortably in one section of the home while renting out the rest, or easily convert the space back into a large single-family residence to suit your needs. With a covered rear porch, ample backyard space, and close proximity to local amenities, this home offers both lifestyle flexibility and long-term potential. Don’t miss this unique opportunity—schedule your private tour today!

Essential Information

  • MLS® #SW26024979
  • Price$595,000
  • Bedrooms7
  • Bathrooms3.00
  • Full Baths3
  • Square Footage3,391
  • Acres0.20
  • Year Built2006
  • TypeResidential
  • Sub-TypeSingle Family Residence
  • StatusActive

Community Information

  • Address1237 Huckleberry
  • CitySan Jacinto
  • CountyRiverside
  • Zip Code92582

Area

SRCAR - Southwest Riverside County

Amenities

  • Parking Spaces3
  • # of Garages3
  • ViewNeighborhood
  • PoolNone

Utilities

Electricity Connected, Natural Gas Connected, Sewer Connected, Water Connected

Parking

Driveway, Garage Faces Front, Garage

Garages

Driveway, Garage Faces Front, Garage

Interior

  • HeatingCentral
  • CoolingCentral Air
  • FireplaceYes
  • FireplacesLiving Room
  • # of Stories2
  • StoriesOne

Interior Features

Ceiling Fan(s), Separate/Formal Dining Room, Bedroom on Main Level, Entrance Foyer, Walk-In Closet(s)

Appliances

Dishwasher, Gas Oven, Gas Range

Exterior

  • Lot DescriptionZeroToOneUnitAcre
  • WindowsBlinds
  • RoofCommon Roof, Shingle

School Information

  • DistrictHemet Unified
  • ElementaryFruitvale
  • MiddleRancho Viejo
  • HighTahquitz

Additional Information

  • Date ListedFebruary 9th, 2026
  • Days on Market43

Listing Details

  • AgentHector Gutierrez
  • OfficeKeller Williams, The Lakes
Please provide a valid email address.

Hector Gutierrez, Keller Williams, The Lakes.

Based on information from California Regional Multiple Listing Service, Inc. as of March 24th, 2026 at 8:20am PDT. This information is for your personal, non-commercial use and may not be used for any purpose other than to identify prospective properties you may be interested in purchasing. Display of MLS data is usually deemed reliable but is NOT guaranteed accurate by the MLS. Buyers are responsible for verifying the accuracy of all information and should investigate the data themselves or retain appropriate professionals. Information from sources other than the Listing Agent may have been included in the MLS data. Unless otherwise specified in writing, Broker/Agent has not and will not verify any information obtained from other sources. The Broker/Agent providing the information contained herein may or may not have been the Listing and/or Selling Agent.