Connect

Find us on...

Dashboard

Login using...

Shawn Bengtson

Office Broker - DRE 01236964

  • Office 760-805-7199
Questions?

1239 S C Street, Oxnard – $2,950,000

  • $3M Price
  • ½ Acres
  • 168 DOM
  • $3M Price
  • ½ Acres
  • 168 DOM

1239 S C Street

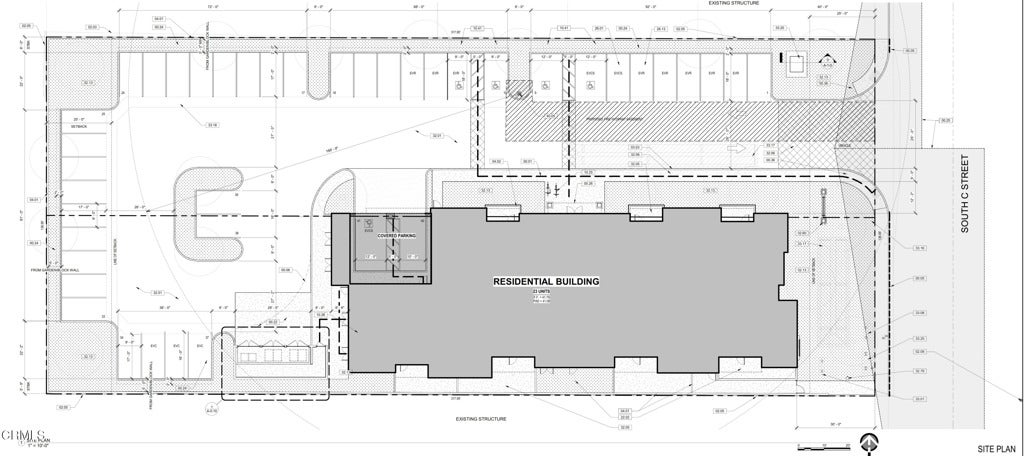
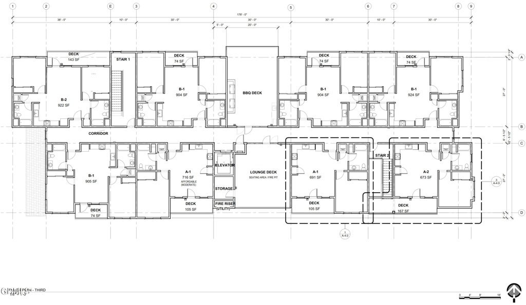
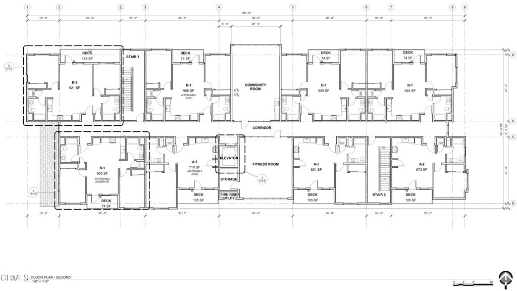
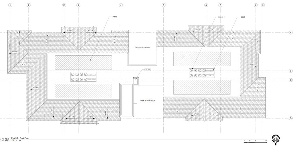
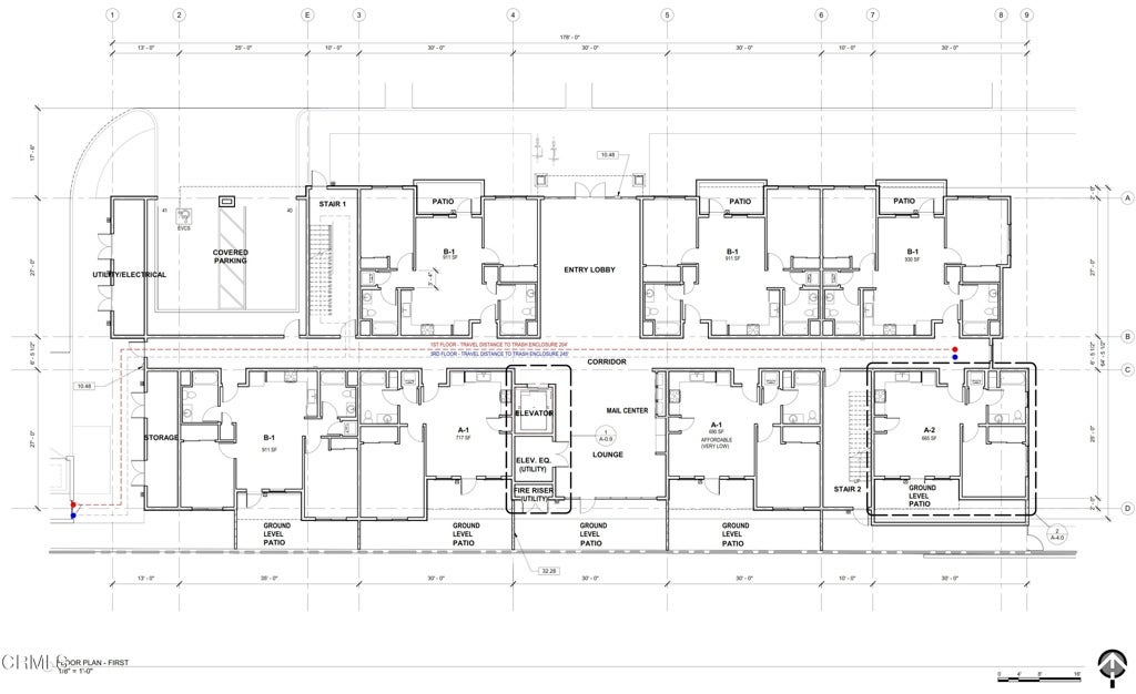
Attention Developers and Investors! A great opportunity acquire an entitled downtown Oxnard Property with approved plans for a three-story, 23-unit mixed-income multifamily development totaling 31,636 SF . The project merges two half-acre parcels into a nearly one-acre site, replacing an existing SFR with a thoughtfully designed residential community. Zoned R-2 Multiple Family ResidentialThe development offers a balanced unit mix, (9) 1BR units (665-717 SF) and (14) 2BR units (905-922 SF). Five of the units are designated affordable. Type V-A construction, and designed with accessibility in mind, featuring elevator service to all levels.Planned amenities include a ground-floor community lounge (563 SF), package and delivery center, second-floor community room (620 SF) and fitness center (551 SF), as well as third-floor outdoor decks (1,167 SF). Each residence will also enjoy a private patio or balcony.The project provides 41 parking spaces, including EV-ready and EV-charging stalls, along with bicycle racks, meeting both state and local sustainability requirements. Landscaped open space and on-site community features create an attractive living environment within walking distance of neighborhood services and schools.Tenants in the Existing residence generate $2650/month income. Sale includes plans, reports and city planning approvals.

Essential Information

  • MLS® #V1-31934
  • Price$2,950,000
  • Bathrooms0.00
  • Acres0.50
  • Year Built1915
  • TypeResidential Income
  • Sub-TypeMixed Use
  • StatusActive

Community Information

  • Address1239 S C Street
  • SubdivisionVillage Townhomes - 4607
  • CityOxnard
  • CountyVentura
  • Zip Code93033

Area

VC33 - Oxnard - Southwest / Port Huenem

Amenities

  • ParkingDriveway Level
  • GaragesDriveway Level
  • PoolNone

Interior

  • HeatingWall Furnace
  • CoolingNone
  • FireplacesNone

Exterior

  • Lot DescriptionSprinklers None

Additional Information

  • Date ListedAugust 17th, 2025
  • Days on Market168
  • ZoningR-2

Listing Details

  • AgentRosy Hernandez
  • OfficeExit Castillo Realty
Please provide a valid email address.

Price Change History for 1239 S C Street, Oxnard, (MLS® #V1-31934)

Date Details Change
Price Reduced from $3,550,000 to $2,950,000 $600,000 (16.90%)

Rosy Hernandez, Exit Castillo Realty.

Based on information from California Regional Multiple Listing Service, Inc. as of February 6th, 2026 at 7:50pm PST. This information is for your personal, non-commercial use and may not be used for any purpose other than to identify prospective properties you may be interested in purchasing. Display of MLS data is usually deemed reliable but is NOT guaranteed accurate by the MLS. Buyers are responsible for verifying the accuracy of all information and should investigate the data themselves or retain appropriate professionals. Information from sources other than the Listing Agent may have been included in the MLS data. Unless otherwise specified in writing, Broker/Agent has not and will not verify any information obtained from other sources. The Broker/Agent providing the information contained herein may or may not have been the Listing and/or Selling Agent.