Connect

Find us on...

Dashboard

Login using...

Shawn Bengtson

Office Broker - DRE 01236964

  • Office 760-805-7199
Questions?

707 709 E Hueneme Road, Oxnard – $3,099,000

  • $3.1M Price
  • 131 DOM
  • $3.1M Price
  • 131 DOM

707 709 E Hueneme Road

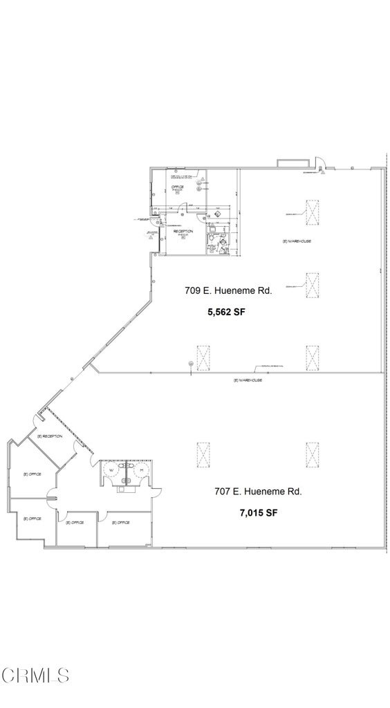
Major price reduction! Price reduced by $300k. Now only $246.40 psf. The property is a 12,577 sq. ft. industrial facility divided as a two-tenant building. 707 E. Hueneme is 7,015 sq. ft. and 709 E. Hueneme is 5,562 sq. ft. Comprised of all ground floor industrial space it includes 2 loading doors and a fenced parking area. The building is equipped with 600 Amp 277/480 Volt power service. Situated on a corner lot of just over one acre of land with two access points. Conveniently located less than one mile from the Pacific Ocean, two miles from the Port of Hueneme and 10 minutes from the 101-freeway corridor. This is a rare opportunity to acquire a two-tenant property which can be fully or partially occupied and can be purchased below replacement value for similar industrial properties in Southern California. The two-tenant layout give ample flexibility for businesses to grow and create passive income possibilities in the near and long term. The fenced parking area is a unique feature that is highly desirable.

Essential Information

  • MLS® #V1-32652
  • Price$3,099,000
  • Bathrooms0.00
  • Acres0.00
  • Year Built2005
  • TypeCommercial Sale
  • Sub-TypeIndustrial
  • StatusActive Under Contract

Community Information

  • Address707 709 E Hueneme Road
  • CityOxnard
  • CountyVentura
  • Zip Code93033

Area

VC32 - Oxnard - Port Hueneme Beaches

Amenities

  • Parking Spaces25

Interior

  • HeatingCentral
  • CoolingCentral Air

Exterior

  • ExteriorConcrete
  • RoofFlat
  • ConstructionConcrete

Additional Information

  • Date ListedOctober 1st, 2025
  • Days on Market131
  • ZoningML

Listing Details

  • AgentMichael Wax
  • OfficeIPA Realty
Please provide a valid email address.

Price Change History for 707 709 E Hueneme Road, Oxnard, (MLS® #V1-32652)

Date Details Change
Status Changed from Active to Active Under Contract
Price Reduced from $3,399,000 to $3,099,000 $300,000 (8.83%)

Michael Wax, IPA Realty.

Based on information from California Regional Multiple Listing Service, Inc. as of February 9th, 2026 at 12:56pm PST. This information is for your personal, non-commercial use and may not be used for any purpose other than to identify prospective properties you may be interested in purchasing. Display of MLS data is usually deemed reliable but is NOT guaranteed accurate by the MLS. Buyers are responsible for verifying the accuracy of all information and should investigate the data themselves or retain appropriate professionals. Information from sources other than the Listing Agent may have been included in the MLS data. Unless otherwise specified in writing, Broker/Agent has not and will not verify any information obtained from other sources. The Broker/Agent providing the information contained herein may or may not have been the Listing and/or Selling Agent.