Connect

Find us on...

Dashboard

Login using...

Shawn Bengtson

Office Broker - DRE 01236964

  • Office 760-805-7199
Questions?

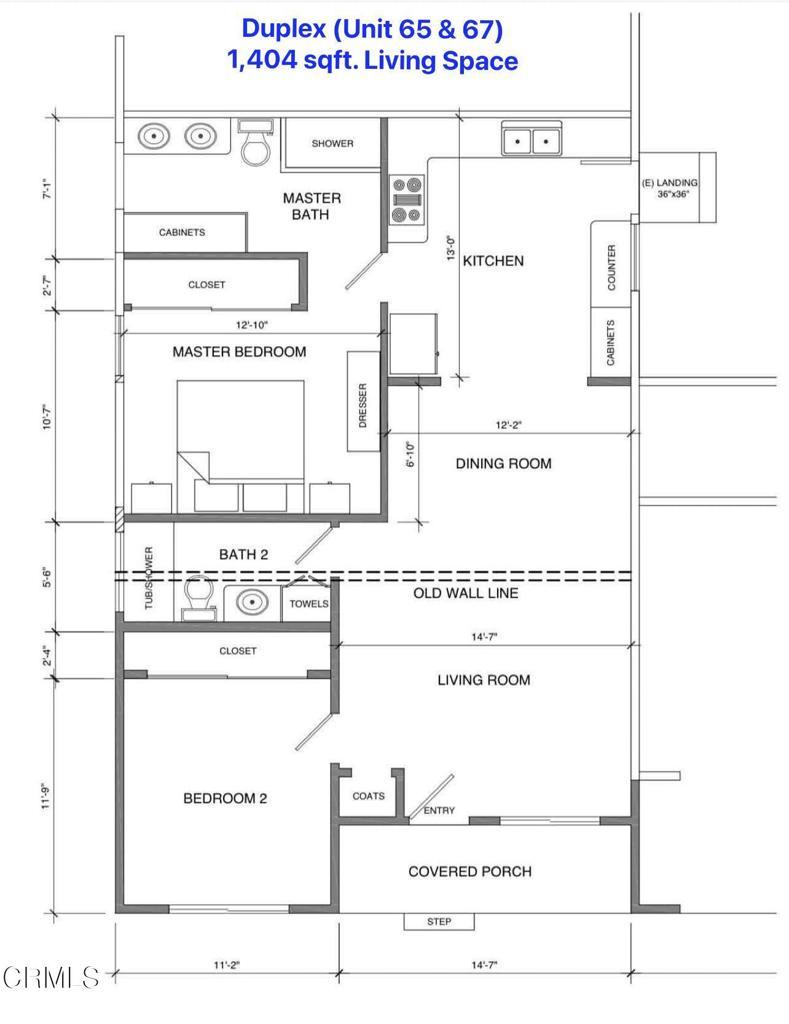
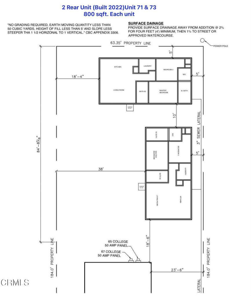
65 ,67,71, College Drive, Ventura – $2,500,000

  • 7 Beds
  • 6 Baths
  • .26 Acres
  • 64 DOM
  • 7 Beds
  • 6 Baths
  • .26 Acres
  • 64 DOM

65 ,67,71, College Drive

Amazing cash-flow investment in prime Midtown Ventura, just 10 minutes to the beach! Updated duplex plus 2 NEW units on a large lot. Front unit 1BD/1BA and rear unit 2BD/1BA, both currently rented. Two new (2022 built) back units each feature 2BD/2BA, private yards, and in-unit washer/dryer with appliances. Strong total rental income.2-car garage with laundry, and spacious driveway parking for up to 5 cars. New electrical panels, separate electric and water meters, updated plumbing, new fencing, and drought-tolerant landscaping. Close to shopping, schools, hospitals, mall, dining, and easy 101 access. Turn-key with strong income and future upside. Don't miss this opportunity.(Photos were taken by the seller before tenants move in).

Essential Information

  • MLS® #V1-34468
  • Price$2,500,000
  • Bedrooms7
  • Bathrooms6.00
  • Acres0.26
  • Year Built1954
  • TypeResidential Income
  • Sub-TypeQuadruplex
  • StyleTraditional
  • StatusActive

Community Information

  • Address65 ,67,71, College Drive
  • SubdivisionVentura: Other
  • CityVentura
  • CountyVentura
  • Zip Code93003

Amenities

  • Parking Spaces5
  • # of Garages2
  • ViewNone
  • PoolNone

Utilities

Cable Available, Electricity Connected, Natural Gas Connected, Sewer Connected, Water Connected

Parking

Door-Single, Driveway, Garage, Public, On Street

Garages

Door-Single, Driveway, Garage, Public, On Street

Interior

  • InteriorLaminate
  • HeatingCentral
  • CoolingNone
  • FireplacesNone
  • StoriesOne

Appliances

Gas Oven, Gas Range, Gas Water Heater, Microwave, Refrigerator, Water Heater, Dryer, Washer

Exterior

  • ExteriorDrywall, Stucco, Vinyl Siding
  • Exterior FeaturesLighting, Rain Gutters
  • WindowsScreens
  • RoofComposition
  • ConstructionDrywall, Stucco, Vinyl Siding
  • FoundationRaised

Lot Description

Front Yard, Lawn, Landscaped, Sprinklers None

Additional Information

  • Date ListedFebruary 4th, 2026
  • Days on Market64

Listing Details

  • AgentErah Eva
  • OfficePinnacle Estate Properties, In
Please provide a valid email address.

Erah Eva, Pinnacle Estate Properties, In.

Based on information from California Regional Multiple Listing Service, Inc. as of April 9th, 2026 at 2:11am PDT. This information is for your personal, non-commercial use and may not be used for any purpose other than to identify prospective properties you may be interested in purchasing. Display of MLS data is usually deemed reliable but is NOT guaranteed accurate by the MLS. Buyers are responsible for verifying the accuracy of all information and should investigate the data themselves or retain appropriate professionals. Information from sources other than the Listing Agent may have been included in the MLS data. Unless otherwise specified in writing, Broker/Agent has not and will not verify any information obtained from other sources. The Broker/Agent providing the information contained herein may or may not have been the Listing and/or Selling Agent.