Connect

Find us on...

Dashboard

Login using...

Shawn Bengtson

Office Broker - DRE 01236964

  • Office 760-805-7199
Questions?

1041 Garfield Avenue # 207, Alhambra – $2,185

  • $2.2k Price
  • .41 Acres
  • 192 DOM
  • $2.2k Price
  • .41 Acres
  • 192 DOM

1041 Garfield Avenue # 207

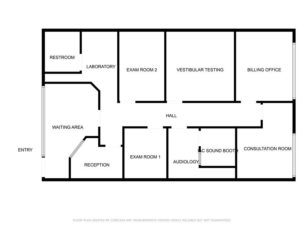
FULL BUILD-OUT MEDICAL OFFICE IN ALHAMBRA. FORMERLY USED FOR AN OTOLOGY LAB AND MEDICAL EXAM OFFICE. THIS 1150 SQ.FT. OFFICE SUITE FEATURES 5 LARGE OFFICES, A LABORATORY AREA, AND AN AUDIOLOGY AREA ALSO KNOWN AS IAC SOUND BOOTH FOR AUDIOLOGY/VESTIBULAR TESTING. ASSIGNED 3 PARKING SPACES AVAILABLE ON THE LOWER-LEVEL PARKING GARAGE. AN ADDITIONAL UPPER-LEVEL PARKING IS AVAILABLE FOR VISITORS. CENTRALLY LOCATED IN A DENSE COMMERCIAL BLOCK. EASILY ASSESSIBLE FROM THE INTERSTATE 10 FREEWAY. CLOSE PROXIMITY TO VARIOUS MEDICAL CENTERS, RESTAURANTS, BANKS, POST OFFICES, AND SHOPPING CENTERS LIKE THE ALHAMBRA PLACE AND ALHAMBRA SQUARE. FOR SHOWING APPOINTMENTS, PLEASE CALL AMENITIES DEVELOPMENT.

Essential Information

  • MLS® #WS25055010
  • Price$2,185
  • Bathrooms0.00
  • Acres0.41
  • Year Built1987
  • TypeCommercial Lease
  • Sub-TypeOffice
  • StatusActive

Community Information

  • Address1041 Garfield Avenue # 207
  • Area601 - Alhambra
  • CityAlhambra
  • CountyLos Angeles
  • Zip Code91801

Amenities

  • Parking Spaces3

Utilities

Cable Available, Electricity Available, Phone Available, Sewer Available, Water Available

Interior

  • HeatingCentral
  • CoolingCentral Air
  • # of Stories2

Exterior

Lot Description

SixToTenUnitsAcre, Corner Lot, Trees

Additional Information

  • Date ListedMarch 10th, 2025
  • Days on Market192
  • ZoningALCO*

Listing Details

  • AgentPaige Yen
  • OfficePaige Yen, Broker
Please provide a valid email address.

Paige Yen, Paige Yen, Broker.

Based on information from California Regional Multiple Listing Service, Inc. as of September 22nd, 2025 at 3:36pm PDT. This information is for your personal, non-commercial use and may not be used for any purpose other than to identify prospective properties you may be interested in purchasing. Display of MLS data is usually deemed reliable but is NOT guaranteed accurate by the MLS. Buyers are responsible for verifying the accuracy of all information and should investigate the data themselves or retain appropriate professionals. Information from sources other than the Listing Agent may have been included in the MLS data. Unless otherwise specified in writing, Broker/Agent has not and will not verify any information obtained from other sources. The Broker/Agent providing the information contained herein may or may not have been the Listing and/or Selling Agent.