Connect

Find us on...

Dashboard

Login using...

Shawn Bengtson

Office Broker - DRE 01236964

  • Office 760-805-7199
Questions?

5205 Tamarack Lane, Banning – $485,000

  • 3 Beds
  • 3 Baths
  • 1,741 Sqft
  • .15 Acres
  • 3 Beds
  • 3 Baths
  • 1,741 Sqft
  • .15 Acres

5205 Tamarack Lane

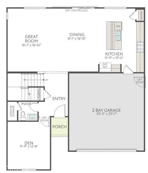
The Cypress floor plan offers a beautifully crafted layout that perfectly balances style and everyday functionality. A welcoming dining area greets you upon entry and flows effortlessly into the spacious great room—ideal for both relaxed living and entertaining. At the center of the home, the chef-inspired kitchen impresses with a large prep island, ample counter space, and an oversized pantry for exceptional storage. Upstairs, the private primary suite is thoughtfully set apart from the secondary bedrooms, creating a secluded retreat. Designed for comfort and privacy, it’s the perfect place to unwind while maintaining a practical layout for the rest of the home. Secure your chance to own this stunning residence, with anticipated completion in August 2026.

Essential Information

  • MLS® #IV26058580
  • Price$485,000
  • Bedrooms3
  • Bathrooms3.00
  • Full Baths2
  • Half Baths1
  • Square Footage1,741
  • Acres0.15
  • Year Built2026
  • TypeResidential
  • Sub-TypeSingle Family Residence
  • StatusActive

Community Information

  • Address5205 Tamarack Lane
  • SubdivisionCiena
  • CityBanning
  • CountyRiverside
  • Zip Code92220

Area

263 - Banning/Beaumont/Cherry Valley

Amenities

  • Parking Spaces2
  • # of Garages2
  • ViewNone
  • Has PoolYes
  • PoolAssociation

Amenities

Dog Park, Barbecue, Picnic Area, Playground, Pool, Spa/Hot Tub, Trail(s)

Interior

  • Interior FeaturesAll Bedrooms Up
  • CoolingCentral Air
  • FireplacesNone
  • # of Stories2
  • StoriesTwo

Exterior

Lot Description

Drip Irrigation/Bubblers, Sprinklers In Front

School Information

  • DistrictBeaumont

Additional Information

  • Date ListedMarch 17th, 2026
  • Days on Market9
  • HOA Fees195
  • HOA Fees Freq.Monthly

Listing Details

  • AgentNyla Sterling

Office

TRI POINTE HOMES HOLDINGS, INC.

Please provide a valid email address.

Nyla Sterling, TRI POINTE HOMES HOLDINGS, INC..

Based on information from California Regional Multiple Listing Service, Inc. as of March 27th, 2026 at 7:57am PDT. This information is for your personal, non-commercial use and may not be used for any purpose other than to identify prospective properties you may be interested in purchasing. Display of MLS data is usually deemed reliable but is NOT guaranteed accurate by the MLS. Buyers are responsible for verifying the accuracy of all information and should investigate the data themselves or retain appropriate professionals. Information from sources other than the Listing Agent may have been included in the MLS data. Unless otherwise specified in writing, Broker/Agent has not and will not verify any information obtained from other sources. The Broker/Agent providing the information contained herein may or may not have been the Listing and/or Selling Agent.